Ons kantoor is lid van Baerz & Co Luxury Homes; een internationaal platform dat exclusieve woningmakelaars met elkaar verbindt. Neem contact op met ons secretariaat voor meer informatie over het landelijke aanbod, waarvan u hieronder een selectie kunt bekijken.

VENLO
Negen-novemberweg 27 - 5916 LD
荷兰

Don Willems profile image
Don Willems
Makelaar
€839,000 k.k.
居住面积
227m2
地块大小
754m2
卧室
6

描述

这座位于芬洛的乡村别墅重新定义了可持续生活理念,将前瞻设计与宁静氛围和谐融合。步入227 m²的室内空间,核心关键词“芬洛乡村别墅”以低调且面向未来的舒适感跃然呈现。住宅获得A++能效标签,配备16块太阳能电池板、混合型热泵及全方位隔热,带来高效节能体验,每月能源费用仅为160欧元。

主生活区面积达62 m²,通过一扇凸窗采光充盈,设有壁炉、天窗与推拉门,直接通向景观私家花园(占地754 m²)。毗邻的厨房与功能区兼具实用与精致,自动遮阳设施让居室氛围更宜人。几乎整个首层均设地暖与地面制冷。该层的主人套房(16 m²)配备独立卫浴,确保私密与便利。

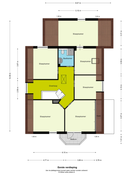
二层布局包括五间卧室与第二间浴室,其中一间卧室可通往未来的康养空间,另一间连接阳台。地下室、阁楼及21 m²带加热功能的分段门车库(花园直通)提供灵活储物与多样功能。户外,成熟林木与精致绿篱环绕多处休憩区,营造静谧绿洲,适合安宁家庭生活或户外聚会。

别墅坐落于荷德边境宁静地带,毗邻Groote Heide自然保护区,步行可达体育设施,兼具便利与隐逸。距芬洛市中心及前往埃因霍温、德国的主干道仅十分钟车程,为追求平静且便利生活者带来理想选择。如此空间开阔、舒适且绿色可持续的芬洛乡村别墅,实属稀有购置良机。

与Baerz一起探索Venlo,您值得信赖的个人房产搜索和顾问

高端房产交易需深谙本地房源、规划和发展趋势。资深顾问可推荐独家房源,擅长私密谈判,为客户抢占市场先机。针对高建筑价值住宅或优质投资条款,专业指导至关重要。

特点

太阳能板
报警系统
所有权转让
要价
€ 839.000 k.k.
状态
verkocht onder voorbehoud
接受
in overleg
建筑
房屋类型
Landhuis
建筑类型
vrijstaande woning
建造时期
1989
能源评级
A++
屋顶类型
zadeldak
卧室
6
浴室
2
表面积和体积
居住面积
227 m2
其他室内空间
70 m2
附属于建筑的外部空间
8 m2
体积(立方米)
1100 m3
地块大小
754 m2
设施
Mechanische ventilatie
Alarminstallatie
Tv kabel
Buitenzonwering
Schuifpui
Dakraam
Zonnepanelen
Aan bosrand
In woonwijk
Baerz & Co Property Brochure

宣传册

视频

户型图

VeTeBe

Grotestraat 84a
5931 CX Tegelen

info@vetebe.nl
+31 77 3262600

www.vetebe.nl

信息/查看请求

Don Willems profile image
Don Willems
Makelaar