Ons kantoor is lid van Baerz & Co Luxury Homes; een internationaal platform dat exclusieve woningmakelaars met elkaar verbindt. Neem contact op met ons secretariaat voor meer informatie over het landelijke aanbod, waarvan u hieronder een selectie kunt bekijken.

VEENENDAAL
Zandstraat 35 - 3901 CJ
荷兰

Wistik Zonnenberg profile image
Wistik Zonnenberg
Register Makelaar Taxateur/ Eigenaar
€894,500 k.k.
居住面积
180m2
地块大小
340m2
卧室
4

描述

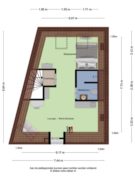
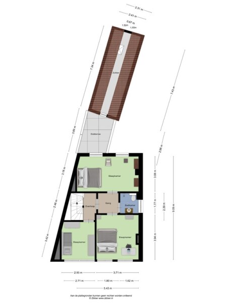
Veenendaal 独栋住宅邀您踏足一处历史与舒适并存的住址,静谧地位于 Zandstraat 街,紧邻市中心边缘。这座建于 1908 年的纪念性联排别墅,占地 180 平方米,营造出独特的气质与温暖氛围。每一间房都洋溢着原始细节——精致的墙檐,定制橱柜,实心橡木人字拼地板以及宜人的高挑天花板——再以当代饰面勾勒出清晰的空间感。布局涵盖六间房,包括四间卧室和两间雅致浴室,既保证了私密性,也尊重了家庭共享空间的美感。

底层由宽敞的门厅引入,步入客餐一体空间,复古壁炉、阳光透过高大的原装上掀窗和百叶窗洒落全室,同时配备嵌入式家电和流畅扩展,兼具现代舒适。面向后花园的厨房兼具经典与实用,连通宽阔、朝南的阳光花园,在整洁排列的椴树与核桃树怀抱中营造静谧私境。多处休憩空间适合家人长谈或静思时光;后方双开门和院内私人车位增添罕见的城市便利。

楼上卧室光线充足、布局讲究,配有屋顶露台和通透的阁楼顶层,设有独立茶水间与浴室。坚实的橡木与天然瓷砖衬托着裸露的横梁,最新高效中央供暖系统与光纤互联网悄然融合现代科技与历史魅力。340 平方米地块上可停至少两辆车,城市设施、咖啡馆、学校与绿色的 Utrechtse Heuvelrug 风光近在咫尺。

对于寻求在 Veenendaal 购置豪华联排住宅的居者而言,这里将隽永建筑与当代舒适巧妙结合,是荷兰心脏地带无法抗拒的选择。

与Baerz一起探索Veenendaal,您值得信赖的个人房产搜索和顾问

高净值买家在芬嫩代尔需借助本地专家获取专属私密房源和核心圈资源,这些专业人士擅长梳理细致政策及挖掘难得机会。深度市场洞察和精致谈判,帮助每笔交易精准契合客户需求并规避风险。

特点

所有权转让
要价
€ 894.500 k.k.
状态
Available
接受
In Concert
参考
08144
建筑
房屋类型
Mansion
建筑类型
Detached House
建造时期
1908
屋顶类型
composite
卧室
4
浴室
2
表面积和体积
居住面积
180 m2
其他室内空间
5 m2
附属于建筑的外部空间
10 m2
外部储存空间
5 m2
体积(立方米)
654 m3
地块大小
340 m2
设施
Cable Tv
Fluetube
Fibreopticcable
Not Furnished
Garden
Internetconnection
Phoneline
Skylight
Storageroom
Not Upholstered
Ventilation
Baerz & Co Property Brochure

宣传册

视频

户型图

Zonnenberg Makelaardij

Kerkewijk 108
3904 JG Veenendaal

info@zonnenbergmakelaardij.nl
+31 318 559600

www.zonnenbergmakelaardij.nl

信息/查看请求

Wistik Zonnenberg profile image
Wistik Zonnenberg
Register Makelaar Taxateur/ Eigenaar