Ons kantoor is lid van Baerz & Co Luxury Homes; een internationaal platform dat exclusieve woningmakelaars met elkaar verbindt. Neem contact op met ons secretariaat voor meer informatie over het landelijke aanbod, waarvan u hieronder een selectie kunt bekijken.

NOORDWIJK
Koningin Astrid Boulevard 16 - 2202 BK
荷兰

Frits Wilbrink profile image
Frits Wilbrink
Real estate agent
€3,250,000 k.k.
居住面积
220m2
地块大小
608m2
卧室
5

描述

Noordwijk别墅带来海滨生活的罕见即刻体验,直通林荫大道,坐拥北海不断变换的全景。该历史别墅建于1888年,建筑面积220平方米,坐落于608平方米的宅基地上,兼顾传承底蕴与未来潜力。现有布局包括五间卧室、两间浴室、双车库以及可容纳三辆车的私人车道。

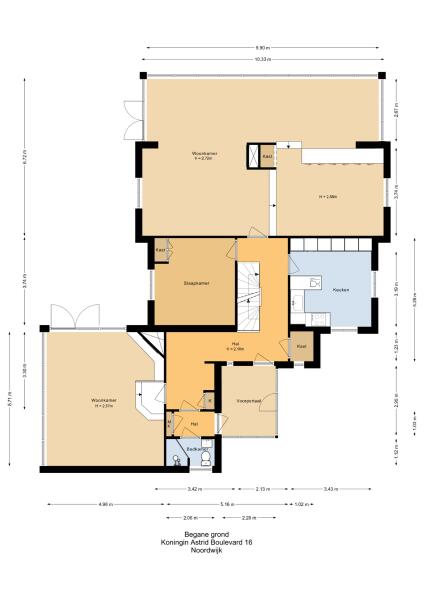
别墅内部,两间明亮的客厅环绕着辽阔的景致,主厅以壁炉为核心,配备大幅窗户,引入清晨的静谧与傍晚金色余晖。现代化厨房配备嵌入式电器,兼顾实用性。一层套房为居住或办公提供灵活空间,并配备便捷的浴室。额外的客厅通向朝南露台,可尽享私人海滩日落美景。

楼上设有四间卧室,均带入墙衣柜,其中两间可无遮挡欣赏海景。前侧大型老虎窗增强自然光照,空间感更加充盈。底层配有娱乐室、独立洗衣房及锅炉间,满足多功能和储藏需求。

别墅的地位映射出独特建筑史,曾接待著名“Huis ter Duin”酒店的宾客。Max Liebermann路线穿门而过,将之家与诺德韦克的艺术与海岸传承纽带相连。毗邻餐厅、商铺和历史中心,Noordwijk别墅售出,兼得尊贵私密与荷兰海岸生活的活力。能源等级G,可作为法定第二居所,适合悉心现代化升级。

与Baerz一起探索Noordwijk,您值得信赖的个人房产搜索和顾问

与本地资深顾问合作可获取更多私密房源并高效应对政策细节。顾问自搜房到敲定谈判全程维护客户利益,并依托建筑、设计及政务网络展开专业服务。市场敏感性、保密性及谈判能力,是进入诺德韦克高端市场的制胜关键。

特点

所有权转让
要价
€ 3.250.000 k.k.
状态
beschikbaar
接受
in overleg
建筑
房屋类型
Villa
建筑类型
vrijstaande woning
建造时期
1888
能源评级
G
屋顶类型
samengesteld dak
卧室
5
浴室
2
表面积和体积
居住面积
220 m2
其他室内空间
25 m2
附属于建筑的外部空间
9 m2
外部储存空间
34 m2
体积(立方米)
891 m3
地块大小
608 m2
设施
Rookkanaal
Glasvezel kabel
Natuurlijke ventilatie
In woonwijk
Vrij uitzicht
Open ligging
Zeezicht
Baerz & Co Property Brochure

宣传册

视频

户型图

Wilbrink & v.d. Vlugt Makelaars

Heereweg 231
2161 BG Lisse

info@wilbrinkvandervlugt.nl
+31 252 41 90 49

www.onsaanbod.nl

信息/查看请求

Frits Wilbrink profile image
Frits Wilbrink
Real estate agent