Ons kantoor is lid van Baerz & Co Luxury Homes; een internationaal platform dat exclusieve woningmakelaars met elkaar verbindt. Neem contact op met ons secretariaat voor meer informatie over het landelijke aanbod, waarvan u hieronder een selectie kunt bekijken.

GEERTRUIDENBERG
Brandestraat 30 - 4931 AW
荷兰

Lennart van Oosterhout profile image
Lennart van Oosterhout
Real Estate Agent
€1,275,000 k.k.
居住面积
268m2
地块大小
374m2
卧室
5

描述

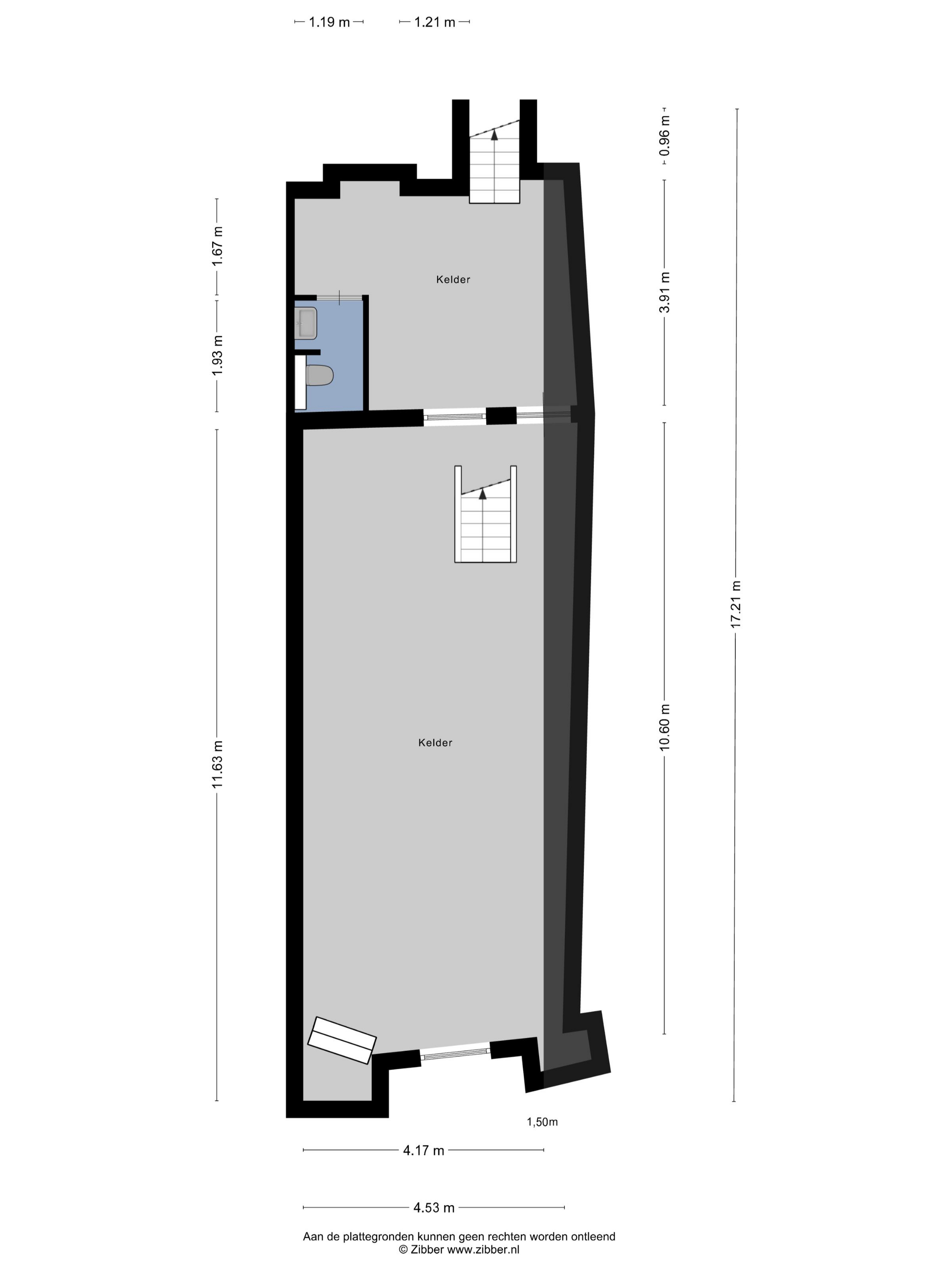
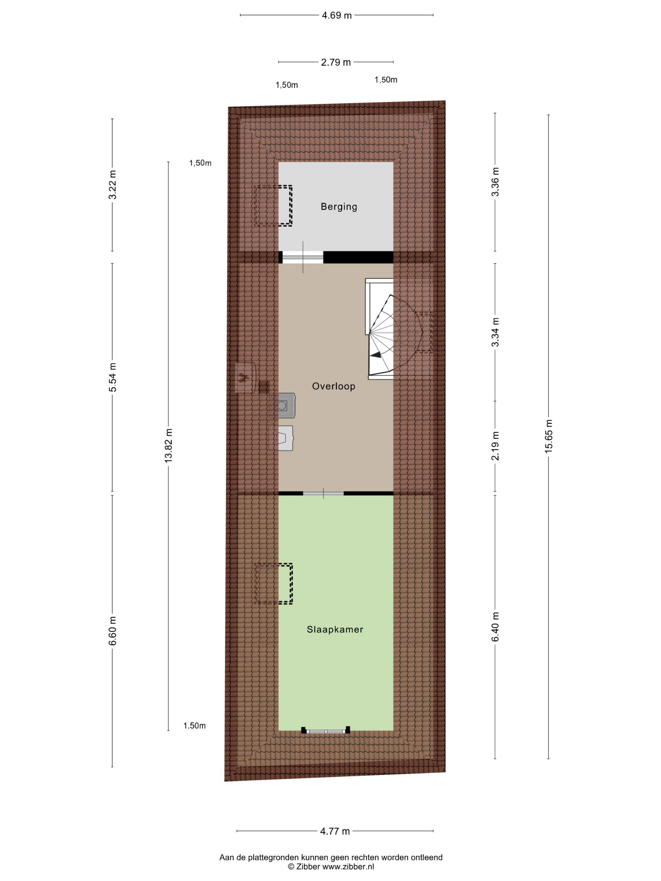
Geertruidenberg联排别墅坐落于小镇标志性的市集广场边缘,将一段历史安然镶嵌于精致的舒适之中。此完全现代化的物业提供268 m²生活空间,布局考究,既保留了原有的历史韵味,也引入了当代便捷。内部宽敞L形客厅铺设橡木实木地板,设有天然石材壁炉,下方为规模宏大的穹顶酒窖。毗邻的起居式厨房采用比利时蓝石、古董橱柜装饰,并可欣赏新近精心打造、朝西南的花园景致。

住宅共设五间卧室和两间浴室,于宽敞与私密之间获得平衡。原有的梁柱为空间赋予节奏感,现代设施如空调、热回收通风系统及Homey智能系统,突显即刻拎包入住的从容。后院附属楼,曾为士兵而建,如今提升了住宅的多样性,非常适合多代同堂或居家办公需求。

保温车库可容纳两辆汽车,配有电动车充电桩和额外储藏空间。通过全屋保温、三层中空玻璃及近期的结构翻新,确保能源等级A。从花园的普罗旺斯氛围,到适合聚会或创意活动的穹顶酒窖,每一处细节都承载着静谧而高雅的生活方式。商铺、餐厅和学校近在咫尺,半小时内即可抵达布雷达和鹿特丹,使这栋待售豪华联排别墅在Geertruidenberg成为传承与舒适难得一遇的交汇。

与Baerz一起探索Geertruidenberg,您值得信赖的个人房产搜索和顾问

需依赖熟悉当地历史房源与区划的可信顾问,才能在此市场顺利操作。获取私密机会、精准估价与流畅交易为实现最大价值所必备。全流程定制服务提升每一步体验,助您实现个性化目标。

特点

空调
所有权转让
要价
€ 1.275.000 k.k.
状态
beschikbaar
接受
in overleg
建筑
房屋类型
Herenhuis
建筑类型
tussenwoning
建造时期
1556
能源评级
A
屋顶类型
zadeldak
卧室
5
浴室
2
表面积和体积
居住面积
268 m2
其他室内空间
49 m2
附属于建筑的外部空间
15 m2
外部储存空间
65 m2
体积(立方米)
1122 m3
地块大小
374 m2
设施
Mechanische ventilatie
Tv kabel
Airconditioning
Aan rustige weg
In centrum
In woonwijk
Beschutte ligging
Baerz & Co Property Brochure

宣传册

视频

户型图

Storimans en Partners

Ginnekenweg 161
4818 JD Breda

lvanoosterhout@storimansenpartners.nl
+31 76 522 60 90

www.storimansenpartners.nl

信息/查看请求

Lennart van Oosterhout profile image
Lennart van Oosterhout
Real Estate Agent