Ons kantoor is lid van Baerz & Co Luxury Homes; een internationaal platform dat exclusieve woningmakelaars met elkaar verbindt. Neem contact op met ons secretariaat voor meer informatie over het landelijke aanbod, waarvan u hieronder een selectie kunt bekijken.

AMSTERDAM
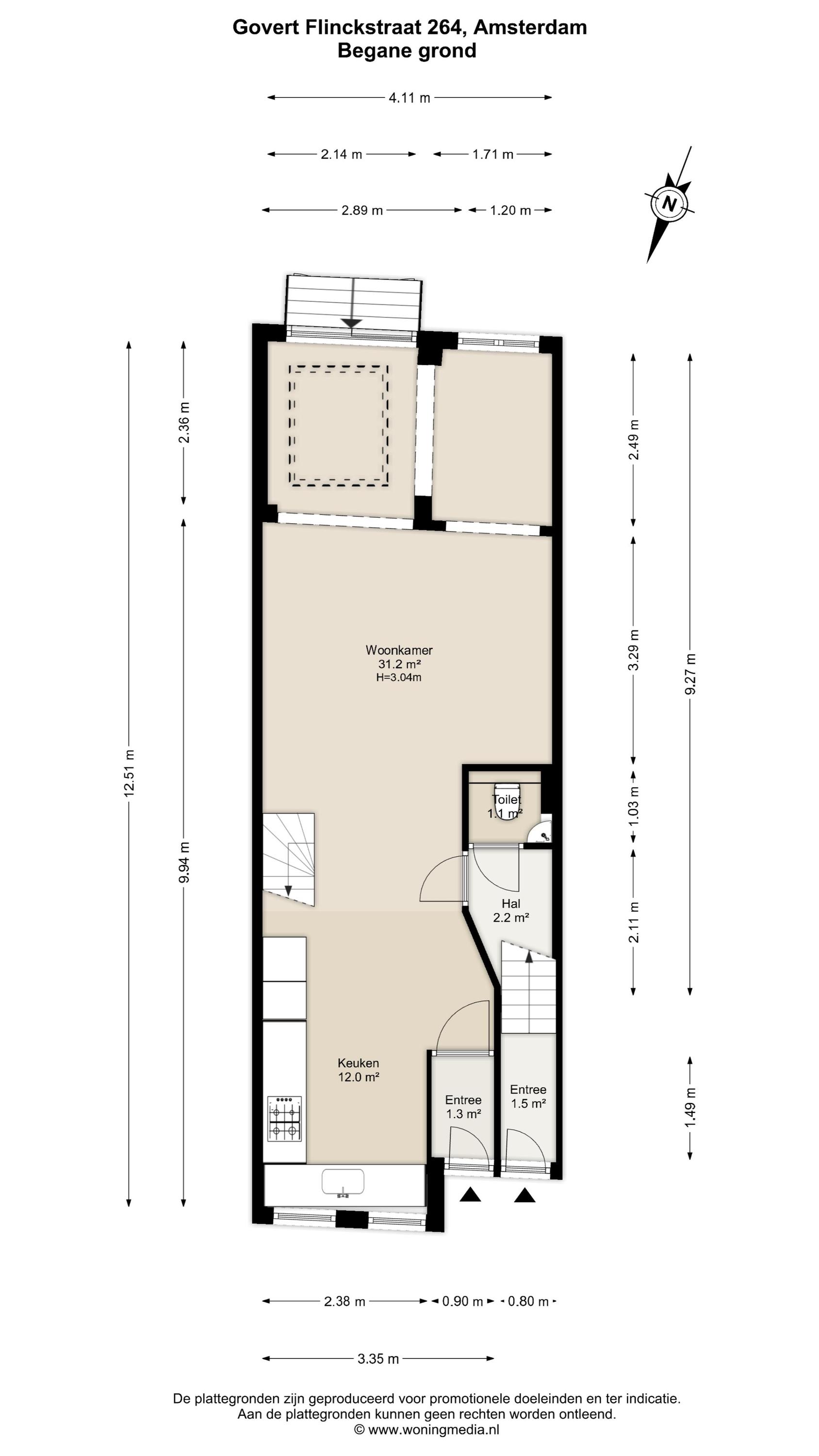
Govert Flinckstraat 264 H - 1073 CE
荷兰

Eran Hausel profile image
Eran Hausel
Real estate agent
€1,100,000 k.k.
居住面积
175m2
地块大小
108m2
卧室
5

描述

阿姆斯特丹公寓坐落于活力四射的De Pijp区Govert Flinckstraat,罕见地呈现出两套独立住宅格局,分别拥有独立入口与门牌号。该多功能物业横跨四层,总面积175平方米,无论是寻求位于市中心、具有纯正本地风貌的家庭,还是投资者,皆蕴藏巨大潜力。其未分割产权和永久业权为未来空间规划提供极大灵活性,可依据相关许可打造成优雅阔绰的家庭住宅,或重塑为两套公寓。

底层起居空间格局开阔,拥有超过三米的层高,天窗及法式落地门直通南向花园,面积约49平方米。前置开放式厨房可欣赏街景,配备Howat三合一即开水龙头、五灶台灶具及充裕收纳系统。一楼设有三间卧室、一间带浴缸与步入式淋浴间的全套卫浴,另配有独立洗衣区。

二楼为完整自持空间,独立出入,生活与用餐区域均按采光最大化理念布局。该层还设有独立厨房和专属书房或居家办公空间。三楼以别具一格的屋顶造型、天窗与阁楼窗为特色,配备两间宽敞卧室和一间浴室,主卧可通往约5平方米的南向阳台。

公寓地理位置优越,步行即至Albert Cuyp市集与Sarphatipark,周边分布众多咖啡馆、精品店及各类生活设施,轻松融入阿姆斯特丹丰富的文化与美食氛围。主要交通枢纽,涵盖Noord/Zuid地铁线及全市有轨电车与巴士线路,均便捷可达,驾车至史基浦机场仅需15分钟。能源等级D,中央供暖,另可申请两张停车许可证,完善现代生活需求。该公寓在都市核心区位中,静宜而不失活力,为品位生活提供理想基点。

与Baerz一起探索Amsterdam,您值得信赖的个人房产搜索和顾问

驾驭阿姆斯特丹高端市场需深厚本地洞察、严密保密与谈判专业技巧。顶尖顾问可助您获取私密房源,梳理细致产权规定,并洞察那些罕见进入市场的隐藏机会。顾问团队严苛资产甄别与代表,提升协商地位、确保交易顺畅并全程保障您的隐私。

特点

所有权转让
要价
€ 1.100.000 k.k.
状态
verkocht onder voorbehoud
接受
in overleg
建筑
房屋类型
Eengezinswoning
建筑类型
tussenwoning
建造时期
1885
能源评级
D
屋顶类型
mansarde dak
卧室
5
浴室
2
表面积和体积
居住面积
175 m2
其他室内空间
0 m2
附属于建筑的外部空间
5 m2
体积(立方米)
611 m3
地块大小
108 m2
设施
Tv kabel
Natuurlijke ventilatie
In centrum
In woonwijk
Baerz & Co Property Brochure

宣传册

视频

Heeren Makelaars

Stadionweg 75
1077 SE Amsterdam

info@heerenmakelaars.nl
+31 204702255

www.heerenmakelaars.nl

信息/查看请求

Eran Hausel profile image
Eran Hausel
Real estate agent