Ons kantoor is lid van Baerz & Co Luxury Homes; een internationaal platform dat exclusieve woningmakelaars met elkaar verbindt. Neem contact op met ons secretariaat voor meer informatie over het landelijke aanbod, waarvan u hieronder een selectie kunt bekijken.

AMSTELVEEN
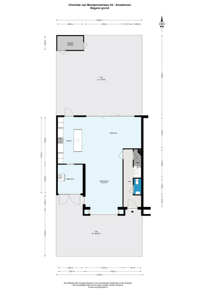
Charlotte Van Montpensierlaan 44 - 1181 RR
荷兰

Igor Veendrick profile image
Igor Veendrick
Real estate agent
€1,950,000 k.k.
居住面积
203m2
地块大小
226m2
卧室
4

描述

这座位于阿姆斯特尔芬的半独立式住宅展现了精致建筑与可持续生活的恒久魅力。房产坐落于备受青睐的Elsrijk 区一条绿树成荫、临水而建的大道上,总建筑面积203平方米,土地面积226平方米,尽显静谧私密,却与阿姆斯特尔芬核心地带咫尺相邻。2022年经Piet Boon独具匠心的全面翻新,每一处细节均兼顾美学冲击与日常舒适。

到达时,修剪整齐的前花园配以深灰色电动滑动大门,营造出庄重优雅的氛围。入口处内,浅色木饰面、橡木楼梯和精致钢材细节带来宁静平和之感。以灰色béton ciré燃气壁炉为中心的客厅通透明亮,自然光为日常生活定下基调,也强化了与私人花园及静谧水景的联接。

开放式餐区与露台无缝衔接,适宜待客,厨房内的大理石中岛与Miele电器,则将功能与体验提升至全新高度。住宅可持续配置包括热泵、地暖、热回收通风、太阳能板和A++级能效标签,实现舒适、高效与未来感。

楼上设有四间卧室,均配备定制收纳空间及Piet Boon设计的健康导向卫浴,其中主卧套间采用葡萄牙大理石与步入式雨淋花洒。独立洗衣间、充裕的嵌入式收纳和先进安防系统等实用设施,为生活环境增添不少便利。对于寻求阿姆斯特尔芬奢华别墅的买家而言,此物业兼具持久品质、可持续科技与荷兰当代设计的精致风范。

与Baerz一起探索Amstelveen,您值得信赖的个人房产搜索和顾问

阿姆斯特尔芬市场的低调与激烈竞逐,需依靠深度洞察。资深顾问可协助进入私密销售,精准掌握社区动态,量身定制谈判策略。他们的专长确保细致尽职调查、优化磋商与顺畅跨境交易,全程为高净值客户利益保驾护航。

特点

太阳能板
报警系统
空调
所有权转让
要价
€ 1.950.000 k.k.
状态
verkocht onder voorbehoud
接受
in overleg
建筑
房屋类型
Eengezinswoning
建筑类型
twee onder een kapwoning
建造时期
1938
能源评级
A++
屋顶类型
zadeldak
卧室
4
浴室
3
表面积和体积
居住面积
203 m2
其他室内空间
0 m2
外部储存空间
4 m2
体积(立方米)
737 m3
地块大小
226 m2
设施
Mechanische ventilatie
Alarminstallatie
Tv kabel
Airconditioning
Rookkanaal
Glasvezel kabel
Zonnepanelen
Aan water
Aan rustige weg
In woonwijk
Vrij uitzicht
Baerz & Co Property Brochure

宣传册

视频

Heeren Makelaars

Stadionweg 75
1077 SE Amsterdam

info@heerenmakelaars.nl
+31 204702255

www.heerenmakelaars.nl

信息/查看请求

Igor Veendrick profile image
Igor Veendrick
Real estate agent