Ons kantoor is lid van Baerz & Co Luxury Homes; een internationaal platform dat exclusieve woningmakelaars met elkaar verbindt. Neem contact op met ons secretariaat voor meer informatie over het landelijke aanbod, waarvan u hieronder een selectie kunt bekijken.

AMSTERDAM
Alexander Boersstraat 29 H - 1071 KV
Нидерланды

Sander Bovenkerk profile image
Sander Bovenkerk
Real estate agent
€2,150,000 k.k.
Жилая площадь
228m2
Размер участка
243m2
Спальни
5

Описание

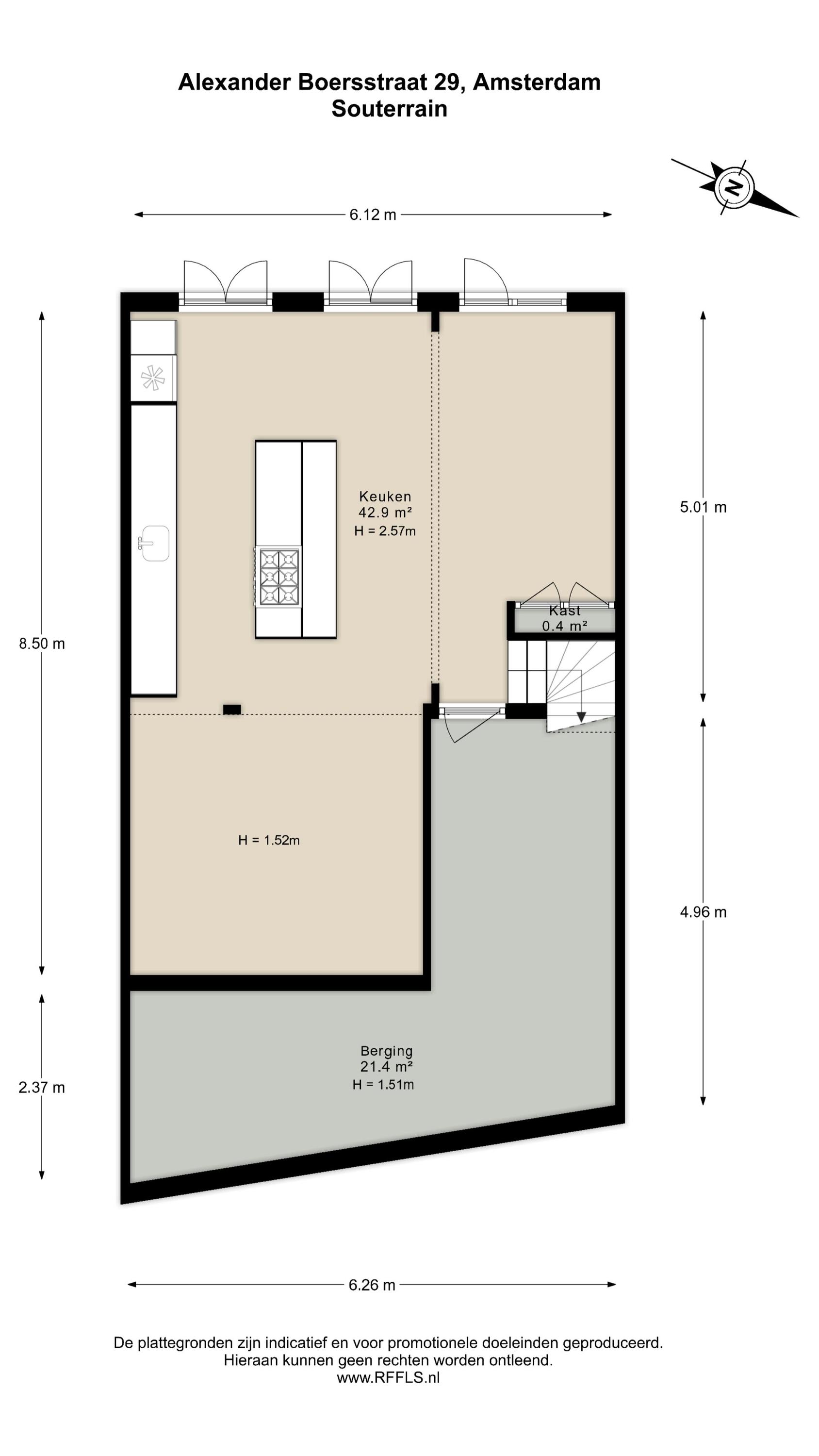
Этот таунхаус в районе музеев Амстердама представляет собой тщательно продуманную композицию площадью 228 м², сочетающую классический характер, утонченную элегантность и редкое чувство приватности. Расположенный на Alexander Boersstraat, дом предлагает пять спален и две ванные комнаты, распределённые на четырёх уровнях, включая просторную террасу на крыше площадью 47 м² с видом на город и планировку, подчеркивающую уникальный ритм на каждом этаже.

Восстановленный фасад отсылает к архитектурному наследию Амстердама, а интерьеры плавно раскрываются последовательностью комнат с высокими потолками, паркетом «ёлочка», изысканными каминами и светлыми французскими балконами. На первом этаже просторный вход ведёт к ряду гостевых и жилых зон, каждая из которых подчеркнута встроенными системами хранения и классическими деталями. Сутерн предназначен для отдыха и встреч, с открытой кухней-столовой под открытыми балками, плавно соединяющей внутренние пространства с тихим патио. Современные удобства, такие как двойные стеклопакеты и естественная вентиляция, обеспечивают комфорт круглый год.

Наверху зоны для сна организованы для уединения и удобства, с индивидуально выполненными шкафами и интегрированным освещением в главной спальне. Ванные комнаты подчёркнуто сочетают природный камень, мозаику и изысканную сантехнику. Верхний этаж открывается прямо на приватную террасу, залитую дневным светом и защищённую для спокойных раздумий над жизнью города. Парковка предусмотрена по муниципальному разрешению. Дом расположен в нескольких шагах от всемирно известных культурных площадок Museumplein, но надёжно ограждён тишиной района и воплощает дух Amsterdam Zuid. Этот роскошный таунхаус на продажу в районе музеев отражает стиль жизни, где ценятся искусство, история происхождения и давнее удовольствие от продуманного дизайна.

Исследуйте Amsterdam с Baerz, вашим надежным личным консультантом по недвижимости

Работа на рынке элитной недвижимости в Амстердаме невозможна без глубоких знаний локальных особенностей, деликатности и мастерства ведения переговоров. Лучшие советники обеспечивают доступ к приватным предложениям, поясняют нюансы права собственности, находят скрытую ценность там, где объекты редко выходят на широкий рынок. Команды экспертов ведут тщательную проверку активов и профессиональное представление клиента, усиливая его позиции на переговорах, обеспечивая прозрачность сделки и полную конфиденциальность.

Избегайте распространенных ошибок

Международные покупатели часто тратят драгоценное время на дублирующиеся, устаревшие или вводящие в заблуждение онлайн-объявления, особенно учитывая, что почти 30% роскошных домов никогда не появляются на открытом рынке. Агенты продавца представляют интересы продавца, а не покупателя. Даже запрос информации о недвижимости может привести к тому, что агент продавца зарегистрирует вас как своего «клиента» без вашего согласия.
С Baerz Property Finders & Advisors вы полностью избегаете всех этих ошибок. Мы работаем исключительно в ваших интересах, предлагая независимое представительство, четкое руководство и доступ ко всем доступным объектам, включая возможности вне рынка, которые другие никогда не увидят.

Интересует Личный Консультант по Недвижимости?

Мы показываем вам все доступные дома в одном месте. Не стесняйтесь связаться с нами, чтобы узнать, как мы можем удовлетворить ваши потребности и защитить ваши интересы исключительно.

Особенности

Передача права собственности
Запрашиваемая цена
€ 2.150.000 k.k.
Статус
beschikbaar
Принятие
in overleg
Строительство
Тип дома
Herenhuis
Тип здания
tussenwoning
Период строительства
1895
Энергетический рейтинг
D
Тип крыши
plat dak
Спальни
5
Ванные комнаты
2
Площадь и объем
Жилая площадь
228 m2
Другое внутреннее пространство
34 m2
Внешнее пространство, прилегающее к зданию
48 m2
Объем в кубических метрах
944 m3
Размер участка
243 m2
Удобства
Frans balkon
Natuurlijke ventilatie
Aan park
Aan rustige weg
In centrum
Baerz & Co Property Brochure

Брошюра

Видео

Планы этажей

Heeren Makelaars

Stadionweg 75
1077 SE Amsterdam

info@heerenmakelaars.nl
+31 204702255

www.heerenmakelaars.nl

Запрос информации / просмотра

Sander Bovenkerk profile image
Sander Bovenkerk
Real estate agent

Покупка элитной недвижимости в Amsterdam

Амстердам предлагает космополитичный образ жизни, определяемый историческим наследием, связностью и утончённой роскошью. Жителей ждёт развитое международное сообщество, персонализированные сервисы и яркая культура. Главный залог привлекательности города — гармония истории, респектабельности и прогрессивных идей.