Baerz & Co is een landelijk samenwerkingsverband van zorgvuldig geselecteerde boutique luxury makelaars. Samen vormen wij één netwerk, met één gedeeld aanbod. De woningen die u op onze website ziet, zijn afkomstig van alle aangesloten kantoren binnen Baerz & Co. Daardoor is niet ieder object rechtstreeks door ons kantoor in verkoop, maar door een gespecialiseerde collega binnen ons netwerk. Heeft u een woning gevonden die u aanspreekt en wilt u meer informatie? Dan brengen wij u graag persoonlijk in contact met de betreffende verkoopmakelaar, zodat u direct en zorgvuldig wordt begeleid.

UITHOORN
Faunalaan 93 - 1422 ZH
Nederland

Joris van Oosten profile image
Joris van Oosten
Real Estate Agent
€1.343.000 k.k.
Woonoppervlakte
290m2
Perceeloppervlakte
445m2
Slaapkamers
6

Omschrijving

Deze riante, vrijstaande villa geschakeld door de garage ligt centraal in de populaire woonwijk Legmeer-West. De villa voelt vanaf het eerste moment royaal, warm en uitnodigend aan. Het grote perceel, de brede oprit met ruimte voor meerdere auto’s en de rustige, ruim opgezette straat vormen een perfecte eerste indruk. De woning werd oorspronkelijk gebouwd als praktijkwoning en beschikt daardoor over twee entrees – een bijzonder voordeel voor wie een kantoor of praktijk aan huis zoekt, maar ook ideaal voor gezinnen die houden van flexibiliteit en extra leefruimte.

De indeling van deze fantastische villa is als volgt:

BEGANE GROND
Bij aankomst valt eerst de overkapte entree die u warm en beschut naar binnen leidt. In de representatieve hal voelt u meteen de royale afmetingen; de meterkast, trapopgang, garderoberuimte en trapkast zijn handig weggewerkt en een modern toilet met fontein maakt het plaatje compleet.

Stap de ruimtelijke woonkamer binnen en u wordt getroffen door het lichte karakter. De vele ramen laten het licht als het ware naar binnen stromen en zorgen voor een natuurlijke verbinding tussen binnen en buiten. Aan de voorzijde bevindt zich de eetkamer met een charmant erkerraam, een perfecte plek om het ochtendlicht te vangen bij het ontbijt of om gezellige diners te organiseren. Het midden van de woning wordt gekenmerkt door de open keuken, waar een groot kookeiland en kastruimte aan beide zijden alles bieden wat een thuiskok zich kan wensen. De keuken is voorzien van een inductiekookplaat, afzuigkap, vaatwasser en Quooker. De hoge kastenwand huisvest een koelkast met vriesvak, koffiezetapparaat, stoomoven en twee combi-ovens met warmhoudlades – alles binnen handbereik.

De grote zithoek aan de achterzijde straalt rust en comfort uit. Een gashaard voegt warmte en sfeer toe, terwijl de openslaande deuren direct toegang geven tot de achtertuin, waar u in alle seizoenen kunt genieten van zon en groen. Vanuit de woonkamer bereikt u de garage, waardoor binnen en buiten, wonen en opslag, naadloos met elkaar verbonden zijn. Vanuit de keuken leidt een deur naar een tweede hal met eigen entree, die toegang biedt tot de multifunctionele ruimte. Momenteel in gebruik als gym, maar met een eigen ingang is deze ruimte net zo goed geschikt als kantoor, praktijkruimte of speelkamer. De begane grond is afgewerkt met een prachtige Franse eiken vloer met vloerverwarming, die warmte en stijl toevoegt, met uitzondering van de garage.

EERSTE VERDIEPING
Op de eerste verdieping vindt u een ruime overloop die toegang biedt tot drie lichte en comfortabele slaapkamers. De hoofdslaapkamer voelt als een echte retreat, royaal en rustig, terwijl de zijslaapkamer met erkerraam en de derde slaapkamer aan de voorzijde flexibel zijn in gebruik – ideaal voor kinderen, logees of een thuiswerkplek. De badkamer is een plek van ontspanning: een douche met hand- en regendouche, een ligbad, dubbel wastafelmeubel en subtiele inbouwspotjes zorgen voor een luxe sfeer. Het separaat toilet maakt het geheel compleet.

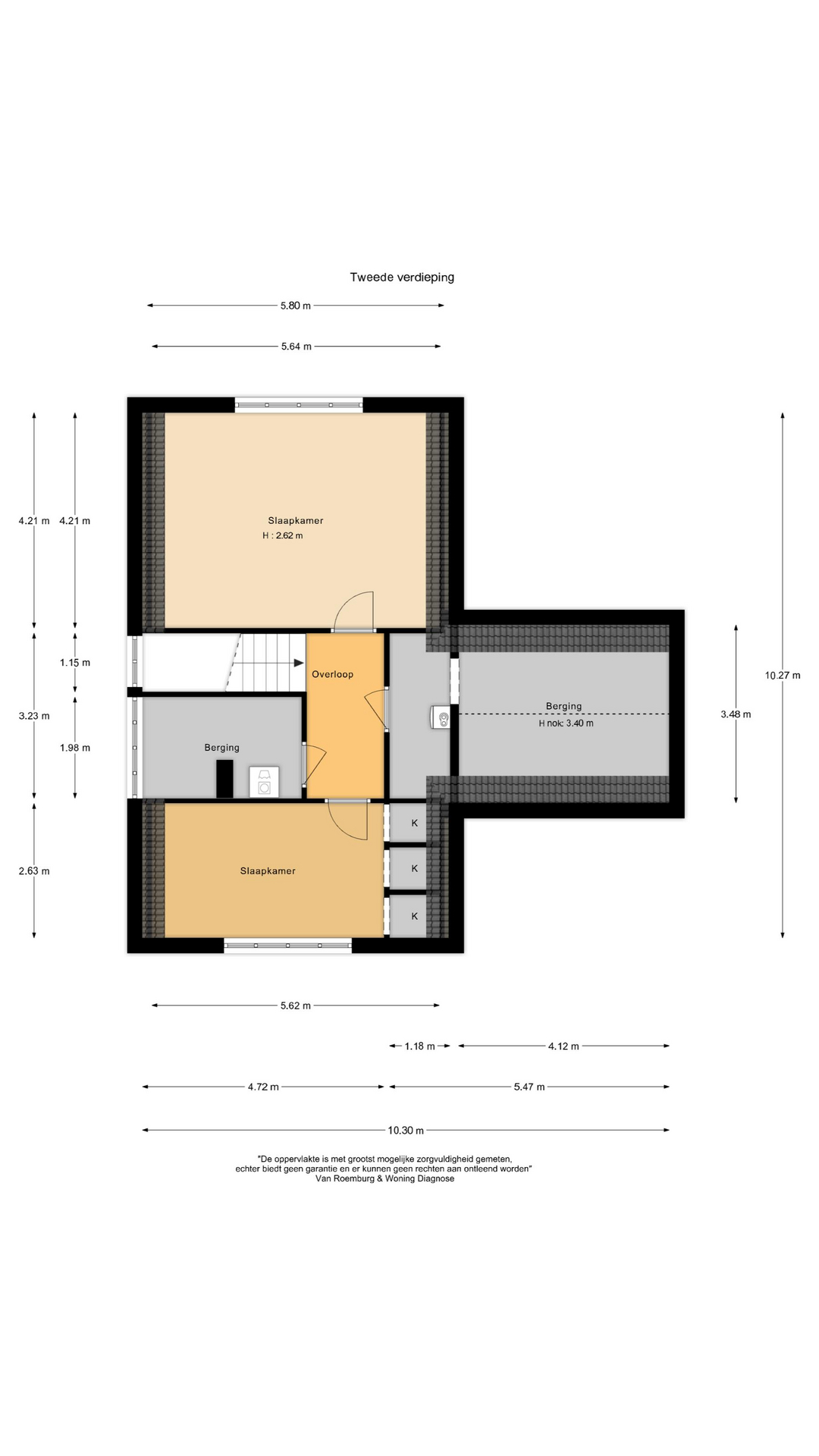
TWEEDE VERDIEPING
Op de tweede verdieping vindt u nog meer verrassende ruimte. Er zijn twee extra slaapkamers waarvan de voorste is voorzien van ingebouwde kasten, wat veel comfort en overzicht biedt. Vanaf de overloop is een aparte ruimte bereikbaar met de aansluiting voor de wasmachine en droger. Hier zou eventueel eenvoudig een tweede badkamer gerealiseerd kunnen worden. Daarnaast is er een kast met technische ruimte die toegang geeft tot een bijzonder ruime berging, ideaal voor het opbergen van seizoensspullen of alles wat u netjes uit het zicht wilt houden.

TUIN
De tuin is een waar toevluchtsoord. Breed en zonnig, met meerdere terrassen, een vijver, kunstgras en een achterom. De beschutte ligging en de mogelijkheid om een jacuzzi te plaatsen maken deze buitenruimte een perfecte plek voor ontspanning, borrels of een zomerse barbecue met vrienden.

GARAGE
De garage is niet alleen praktisch, met een elektrische roldeur, water, elektriciteit en verwarming, maar kan ook fungeren als werkplaats, opslag of hobbyruimte.

PLUSPUNTEN
+ Twee entrees, ideaal voor kantoor, praktijk of atelier aan huis
+ Tuingerichte woonkamer met veel daglicht en openslaande deuren
+ Open keuken met kookeiland en hoogwaardige apparatuur
+ Vijf slaapkamers en een bijzonder ruime berging op de tweede verdieping
+ Multifunctionele ruimte met eigen entree (nu gym)
+ Brede oprit voor meerdere auto’s en voldoende parkeergelegenheid in de straat
+ Brede, zonnige tuin met terrassen, vijver, achterom en plek voor jacuzzi
+ Garage met elektrische roldeur, water, elektriciteit en verwarming
+ Energiezuinig dankzij 18 zonnepanelen en hybride warmtepomp
+ Op loopafstand van de sneltram richting Amsterdam
+ Rustige, groene straat met autoluwe ligging
+ Ideale locatie nabij scholen, sportfaciliteiten en parken

De omgeving van Legmeer-West draagt sterk bij aan het woonplezier. De wijk is ruim opgezet, heeft een rustige jaren ’30 uitstraling en kent autoluwe straten waar kinderen veilig kunnen spelen. Speeltuinen, parken, kinderopvang, basisscholen en middelbare scholen liggen allemaal binnen handbereik. Ook sportliefhebbers hebben hier keuze te over: van hockey, voetbal en atletiek tot een BMX-baan, wielerclub en verschillende sportscholen. Buurtbewoners en de gemeente organiseren bovendien het hele jaar door activiteiten voor jong en oud, wat de wijk een verbindend en levendig karakter geeft. Op nog geen 200 meter afstand ligt de halte van de sneltram richting Amsterdam, waardoor u in een mum van tijd in de hoofdstad bent. Dat maakt deze locatie bijzonder aantrekkelijk voor forenzen die dagelijks snel en comfortabel naar de stad willen reizen.

Uithoorn zelf is een heerlijke plek om te wonen. Op loop- en fietsafstand vindt u tal van winkels, restaurants en gezellige terrassen. In de omgeving liggen prachtige routes om te wandelen of te fietsen en waterliefhebbers hebben de Amstel, de Westeinderplassen en de Kromme Mijdrecht binnen bereik. De bereikbaarheid is uitstekend: met de (elektrische) fiets of het openbaar vervoer bent u zo in Amsterdam, Haarlem of Utrecht. Vanaf het busstation reist u eenvoudig richting onder meer Schiphol, Hoofddorp of Amstelveen, en de Amsteltram brengt u vanaf halte Aan de Zoom rechtstreeks naar Amsterdam-Zuid. Zo combineert deze woning royale leefruimte, veelzijdige mogelijkheden en een fijne, groene woonomgeving – een plek waar het dagelijks leven moeiteloos samenvloeit met comfort, rust én bereikbaarheid.

Deze villa in Uithoorn combineert een uitzonderlijk woonoppervlak met hoogwaardige afwerking en een ligging die zowel rustig als centraal is. Een ideale woning voor wie ruimte zoekt zonder in te leveren op comfort of stijl. Neem contact met ons op voor meer informatie of een persoonlijke rondleiding – wij laten u graag zelf ervaren wat deze woning zo bijzonder maakt.

Kenmerken

Zonnepanelen
Overdracht
Vraagprijs
€ 1.343.000 k.k.
Status
beschikbaar
Aanvaarding
in overleg
Bouw
Soort woonhuis
Villa
Soort bouw
geschakelde woning
Bouwjaar
2009
Energieklasse
A
Soort dak
samengesteld dak
Slaapkamers
6
Badkamers
1
Oppervlakten en inhoud
Woonoppervlakte
290 m2
Overige inpandige ruimte
22 m2
Inhoud
1116 m3
Perceeloppervlakte
445 m2
faciliteiten
Mechanische ventilatie
Tv kabel
Rookkanaal
Dakraam
Zonnepanelen
Balansventilatie
Natuurlijke ventilatie
Aan rustige weg
In woonwijk
Baerz & Co Property Brochure

Brochure

Video’s

Plattegronden

J.J. Van Oosten Makelaardij BV

Straatweg 225
3054 AG Rotterdam

info@vanoostenmakelaardij.nl
+31 10 422 11 00

www.vanoostenmakelaardij.nl

Informatie / bezichtigingsaanvraag

Joris van Oosten profile image
Joris van Oosten
Real Estate Agent

Een luxe woning kopen in Uithoorn

Uithoorn biedt een exclusieve gemeenschap, rustige natuur en deskundig eigendomsadvies. Het aantrekkelijke leefklimaat, investeringsperspectief en discrete internationale allure spreken veeleisende bewoners en investeerders aan.