Ons kantoor is lid van Baerz & Co Luxury Homes; een internationaal platform dat exclusieve woningmakelaars met elkaar verbindt. Neem contact op met ons secretariaat voor meer informatie over het landelijke aanbod, waarvan u hieronder een selectie kunt bekijken.

HAAREN
Nieuwe Erven 12 - 5076 NP
Nederland

Marleen de Bekker profile image
Marleen de Bekker
Real Estate Agent
€1.250.000 k.k.
Woonoppervlakte
184m2
Perceeloppervlakte
918m2
Slaapkamers
5

Omschrijving

Nieuwe Erven 12, Haaren

Heerlijk vrij wonen in Haaren, tegen het buitengebied aan, met alle voorzieningen in de nabijheid. Dit fantastische familiehuis heeft vier slaapkamers op één verdieping, heeft een grote tuin met garage en ligt in een fijne woonwijk.

Algemeen:
Gebruiksoppervlak wonen: ca. 185 m2
Inhoud: ca. 845 m3
Perceeloppervlak: 918 m2
Bouwjaar: 2016
Energielabel: A+ voorzien van 18 zonnepanelen
Indeling

Parterre
U treedt binnen in de hal, waar zich de meterkast, de toiletruimte met fonteintje, de trapopgang naar de verdieping en de toegangsdeur tot de woonkamer bevinden.

Wanneer u binnenkomt zult u blij verrast zijn van de ruimte die deze mooie woning te bieden heeft. Het is een prachtige, royale woonkamer met eetkamer en moderne woonleefkeuken die met elkaar in open verbinding staan.
De sfeervolle haard bevindt zich centraal in de woonkamer. Het is een zonnige woonkamer dankzij de grote raampartij aan de voorzijde en de schuifpui aan de achterzijde, welke toegang geeft tot het fijne overdekte terras.
Het eetkamergedeelte is eveneens mooi ruim opgezet. Terwijl u aan tafel zit, kunt u genieten van het uitzicht op de fraaie tuin. Via de dubbele openslaande terrasdeuren in de eetkamer, komt u uit op het royale overdekte terras.

De keuken
Kookliefhebbers halen hier hun hart op! Deze luxueuze keuken is voorzien van een fijne Quooker, een stoombakoven en een hetelucht oven, een koelkast en een vaatwasser. Het schierkookeiland heeft een 4-pits gaskookplaat en een wokbrander, de afzuigkap is geïntegreerd in het plafond. De keuken heeft een fraai composiet aanrechtblad en heeft zowel veel werk- als veel bergruimte dankzij de brede lades en keukenkasten. Hij is greeploos en wit hoogglans, hetgeen mooi contrasteert met de vloer. Terwijl u kookt bent u tóch gezellig betrokken bij het gezelschap aan tafel en hoeft u niets te missen.

In het verlengde van de keuken bevindt zich de bijkeuken.

De bijkeuken
De bijkeuken is een praktische, fijne ruimte waar zich de aansluitingen van de wasapparatuur bevinden voor zowel de wasmachine, de wasdroger en een wateraansluiting voor bijvoorbeeld een Amerikaanse koelkast. Er staat een ruime inbouwkast voorzien van schuifdeuren. De bijkeuken is te bereiken via de keuken. Vanuit de bijkeuken is de garage bereikbaar en tevens de achtertuin.

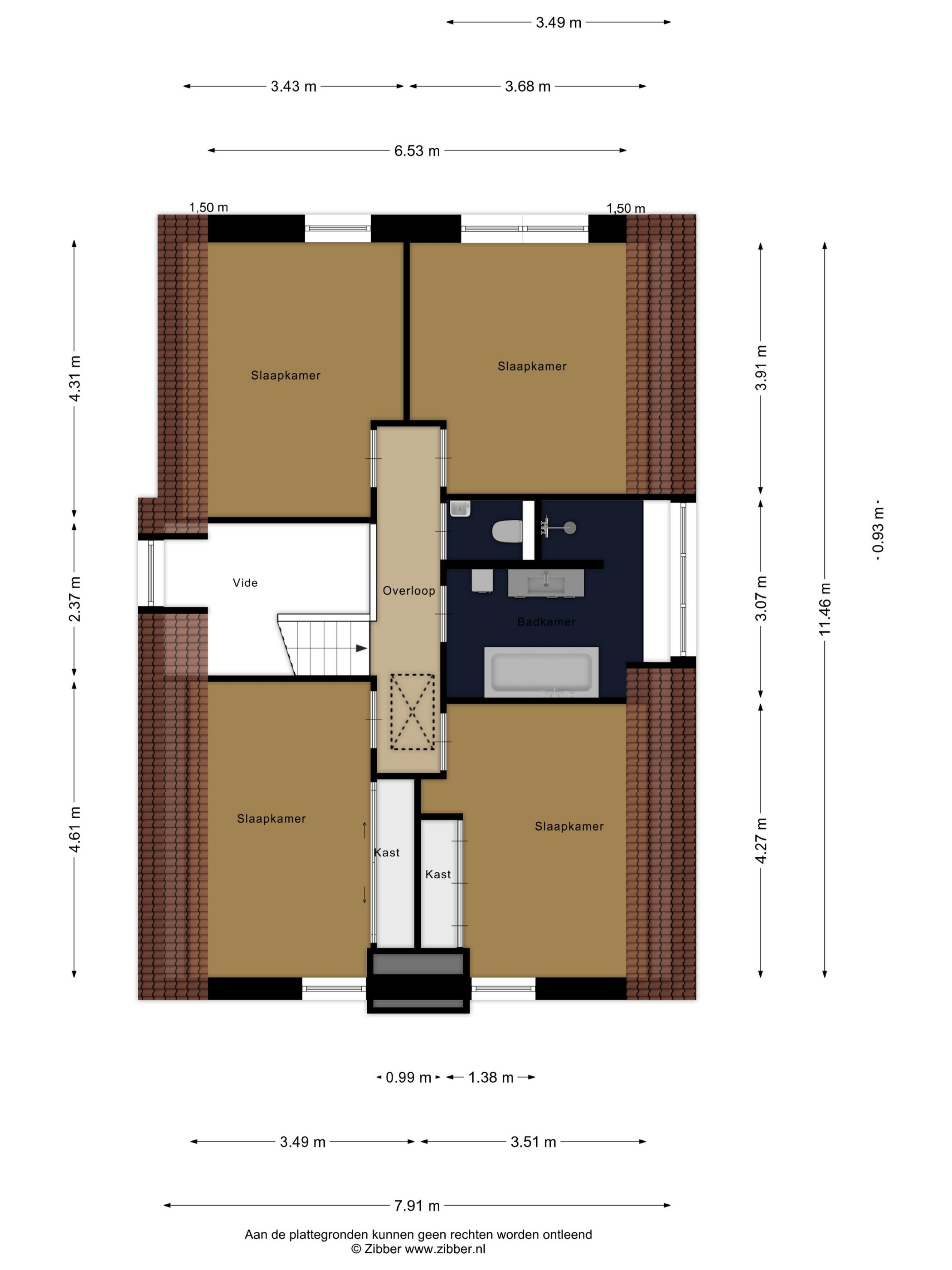
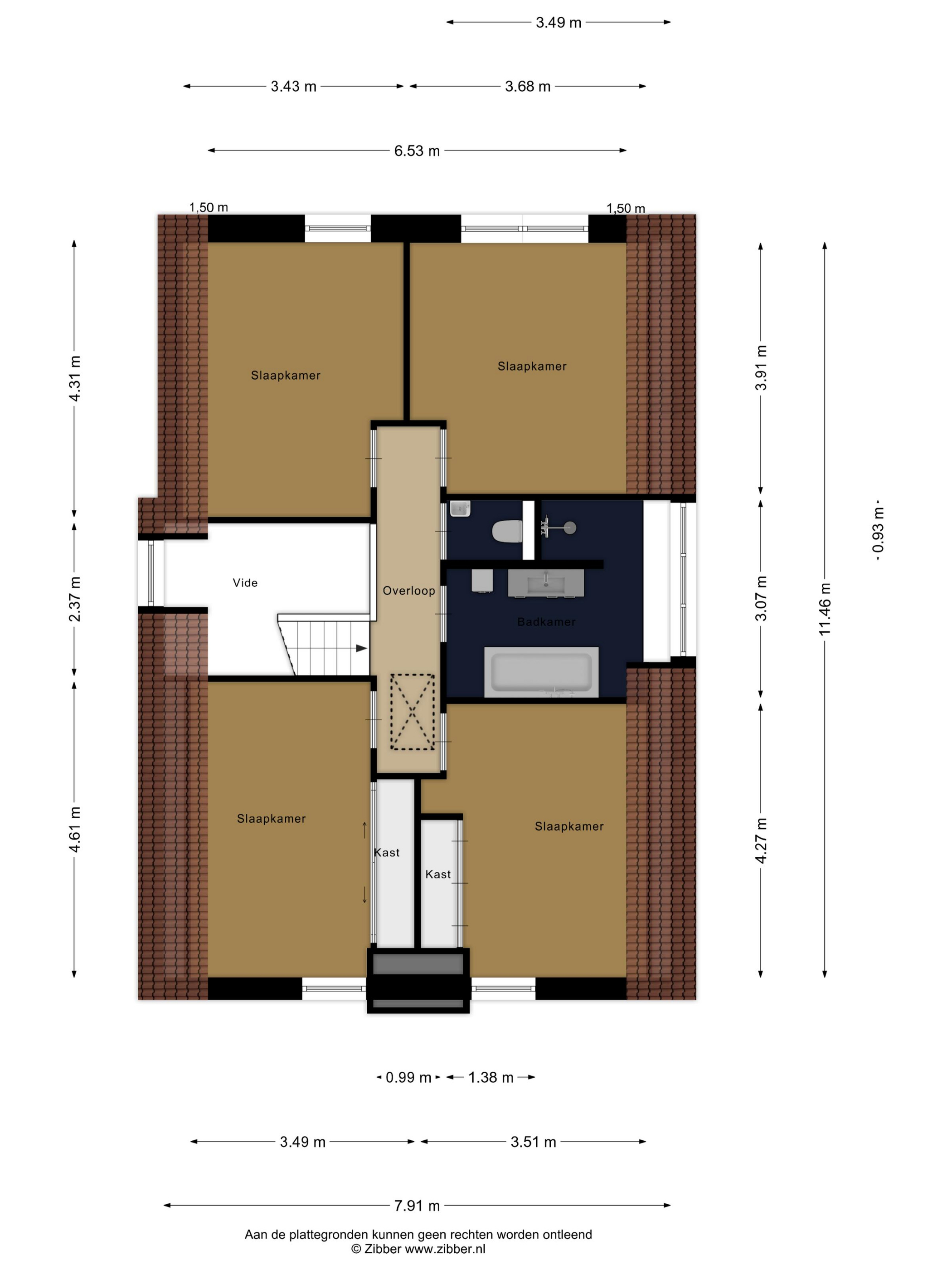
Eerste verdieping
Grenzend aan de overloop met vide bevinden zich 4 slaapkamers, een separate toiletruimte met een fonteintje en de badkamer.

Hoe fijn is het om 4 slaapkamers op 1 verdieping te hebben liggen? De kamers hebben mooie afmetingen, ze zijn allemaal rond de 15 m2 groot.

De badkamer
De badkamer is van alle gemakken voorzien, heeft een groot ligbad, een ruime inloopdouche en een dubbele wastafel geïntegreerd in een badkamermeubel. De badkamer beschikt over fijn natuurlijk daglicht, dankzij het grote raamkozijn. Hij is netjes betegeld en is voorzien van aangename vloerverwarming en een designradiator

Via een vlizotrap is vanaf de overloop de bergzolder bereikbaar.

De bergzolder
Deze fijne, praktische ruimte biedt plaats aan al uw niet dagelijks benodigde spullen. De bergzolder strekt zich uit over de volledige lengte van de woning, ca. 11,5 meter.
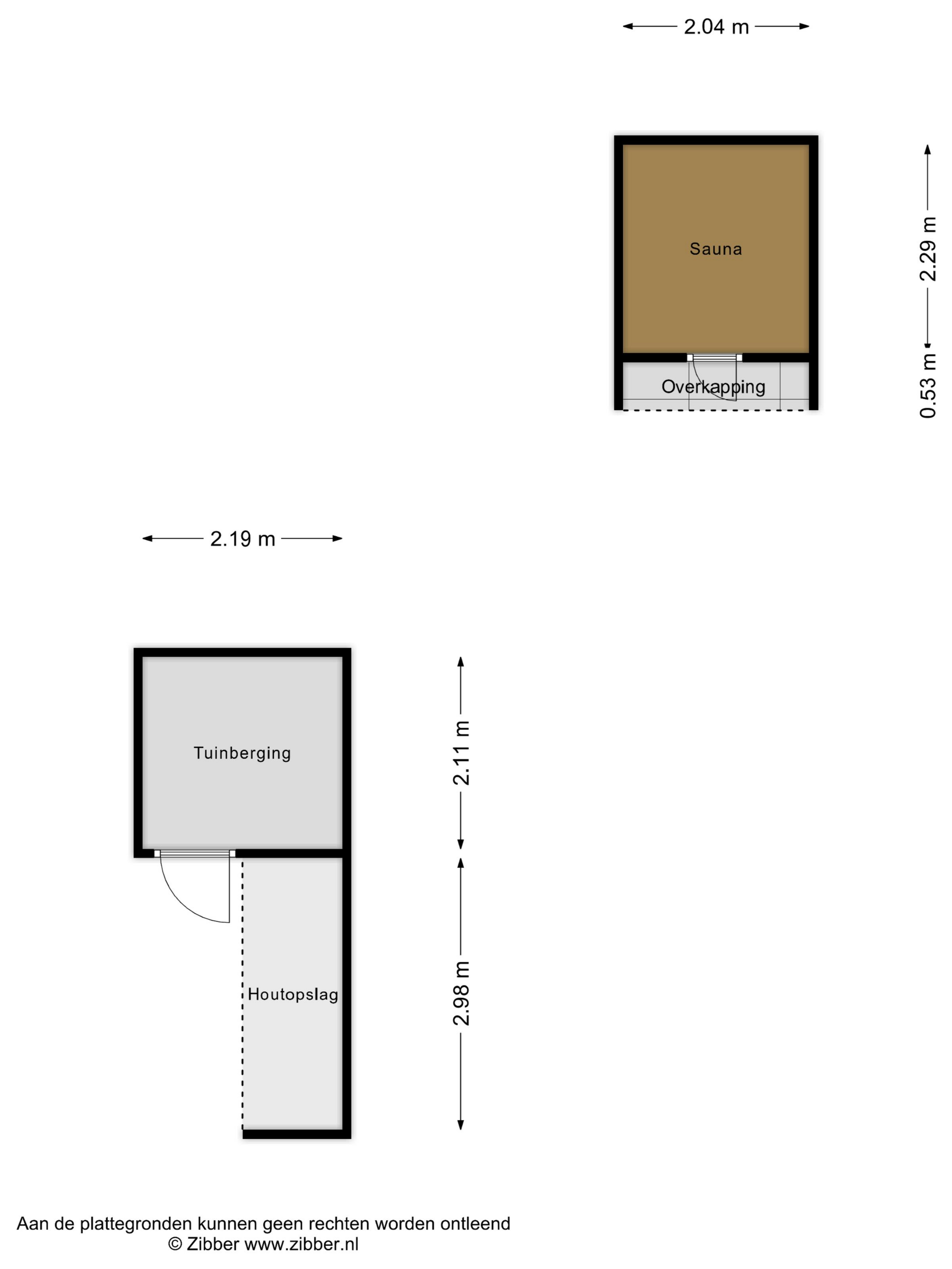
Tuin met overkapping en garage
De tuin is fantastisch, u zit heerlijk vrij. De prachtige tuin is voorzien van groene hagen waardoor er weinig inkijk is. Een fijn speelgazon met een ruim zonneterras. Naast het zonneterras is er tevens een fraai, ruim overdekt terras dat grenst aan de achterzijde van de woning. De overkapping heeft een grote lichtkoepel waardoor de daglicht toetreding in de woonkamer optimaal behouden blijft. En dan is er nog de bijzondere sauna in de tuin, waar u heerlijk kunt ontspannen na een dag hard werken. De voortuin is eveneens netjes aangelegd en heeft een royale oprit met een capaciteit van 4 tot 6 auto’s.

De garage
U kunt uw auto stallen in de garage met dubbele openslaande deuren. De garage is extra breed namelijk ca. 3,85 m en heeft een lengte van ca. 6,30 m. Hij is inpandig te bereiken via de bijkeuken. De garage is volledig geïsoleerd en voorzien van elektra.

Bijzonderheden:
- Heerlijk vrij wonen en toch binnen de bebouwde kom in de nabijheid van alle voorzieningen die het gezellige centrum van Haaren te bieden heeft.
- 4 slaapkamers op 1 verdieping.
- Sfeervol overdekt terras.
- Ruime garage.
- Prachtige, privacyvolle tuin met heerlijke sauna.

Haaren
Haaren telt circa 6.000 inwoners. Een dorp met een dorpskern en een breed aanbod aan voorzieningen valt sinds 2021 onder de gemeente Oisterwijk. Toeristisch gezien een ware trekpleister. De bushalte naar Oisterwijk-Tilburg en naar Den Bosch ligt op loopafstand. En ook natuurgebied de Kampina ligt aan uw voeten. Slechts 2,5 km van het gezellige centrum van Oisterwijk met haar vele terrassen en restaurants. Gemeente Haaren beschikt over een landschappelijk mooi buitengebied met gevarieerde landschappen en sfeervolle dorpskernen. Het wordt ook wel de ‘tuin van Brabant’ genoemd. Delen van zowel Nationaal Park Loonse en Drunense Duinen als Nationaal landschap Het Groene Woud maken deel uit van deze gemeente. In het fraaie buitengebied zijn diverse attractieve fietsroutes. Het heeft een bloeiend verenigingsleven en gezellige horeca.

Benieuwd naar deze fantastische, uitstekend onderhouden vrijstaande woning? Bel of mail Marleen de Bekker van Finesse Makelaardij, zij laat u met plezier deze woning zien. Meer info op: www.finesse-makelaardij.nl

Deze informatie is door Finesse Makelaardij met de nodige zorgvuldigheid samengesteld. Ten aanzien van de juistheid van de vermelde informatie kan door Finesse Makelaardij geen aansprakelijkheid worden aanvaard, noch kan aan de vermelde informatie enig recht worden ontleend. Alle opgegeven maten en oppervlakten zijn slechts indicatief.

Kenmerken

Zonnepanelen
Overdracht
Vraagprijs
€ 1.250.000 k.k.
Status
onder bod
Aanvaarding
in overleg
Bouw
Soort woonhuis
Eengezinswoning
Soort bouw
vrijstaande woning
Bouwjaar
2016
Energieklasse
A+
Soort dak
zadeldak
Slaapkamers
5
Badkamers
1
Oppervlakten en inhoud
Woonoppervlakte
184 m2
Overige inpandige ruimte
44 m2
Gebouwgebonden buitenruimte
36 m2
Externe bergruimte
9 m2
Inhoud
844 m3
Perceeloppervlakte
918 m2
faciliteiten
Mechanische ventilatie
Tv kabel
Rookkanaal
Schuifpui
Sauna
Glasvezel kabel
Zonnepanelen
Aan rustige weg
In woonwijk
Baerz & Co Property Brochure

Brochure

Video’s

Plattegronden

Finesse Makelaardij

Groenstraat 31
5062 NA Oisterwijk

info@finesse-makelaardij.nl
+31 655757171

www.finesse-makelaardij.nl

Informatie / bezichtigingsaanvraag

Marleen de Bekker profile image
Marleen de Bekker
Real Estate Agent

Een luxe woning kopen in Haaren

Haaren biedt stijlvol wonen tussen landelijk erfgoed en groene lanen. Wie kiest voor privacy, gemeenschapsgevoel en perfecte bereikbaarheid vindt hier discretie, culturele rijkdom en uitgebreid vastgoedadvies.