Ons kantoor is lid van Baerz & Co Luxury Homes; een internationaal platform dat exclusieve woningmakelaars met elkaar verbindt. Neem contact op met ons secretariaat voor meer informatie over het landelijke aanbod, waarvan u hieronder een selectie kunt bekijken.

Villa te koop in BERGSCHENHOEK

BERGSCHENHOEK Huig Maaskantstraat 3 - 2662 HC Nederland


Dominique Blom profile image
Dominique Blom
Real Estate Agent
+31 107850833
dominique@dbmakelaars.nl

DB Makelaars
Dorpsstraat 79
2661 CE Bergschenhoek
NETHERLANDS
+31 107850833
www.dbmakelaars.nl
info@dbmakelaars.nl

Woonoppervlakte
171m2
Perceeloppervlakte
256m2
Slaapkamers
4

Omschrijving

Moderne 4-kamer gezinswoning in de populaire wijk Parkzoom met eigen parkeerplaats en zonnige tuin op het noordwesten!

In de gewilde, kindvriendelijke wijk Parkzoom bieden wij u deze goed onderhouden en moderne eengezinswoning aan. De woning beschikt over een eigen parkeerplaats, vier slaapkamers en een fraai aangelegde tuin op het noordwesten.

De ligging is ideaal: op korte afstand van zowel het centrum van Bergschenhoek als Berkel en Rodenrijs. In de directe omgeving bevinden zich diverse speelplaatsen, kinderdagverblijven, basisscholen, openbaar vervoer en uitvalswegen richting de A12, A13, N209 en N472.

Indeling

Begane grond:
Entree via de hal met modern toilet (voorzien van fonteintje), opbergruimte, trapopgang naar de eerste verdieping en toegang tot de woonkamer met open keuken.
De luxe keuken is aan de voorzijde van de woning gelegen en is voorzien van diverse inbouwapparatuur, waaronder een vaatwasser, afzuigkap, inductiekookplaat, combimagnetron en oven.
De lichte, tuingerichte woonkamer beschikt over een praktische trapkast en openslaande deuren naar de achtertuin.

De fraai aangelegde achtertuin is gelegen op het noordwesten, ideaal voor middag- en avondzon.

De begane grond is afgewerkt met een prachtige visgraat PVC-vloer en voorzien van comfortabele vloerverwarming.

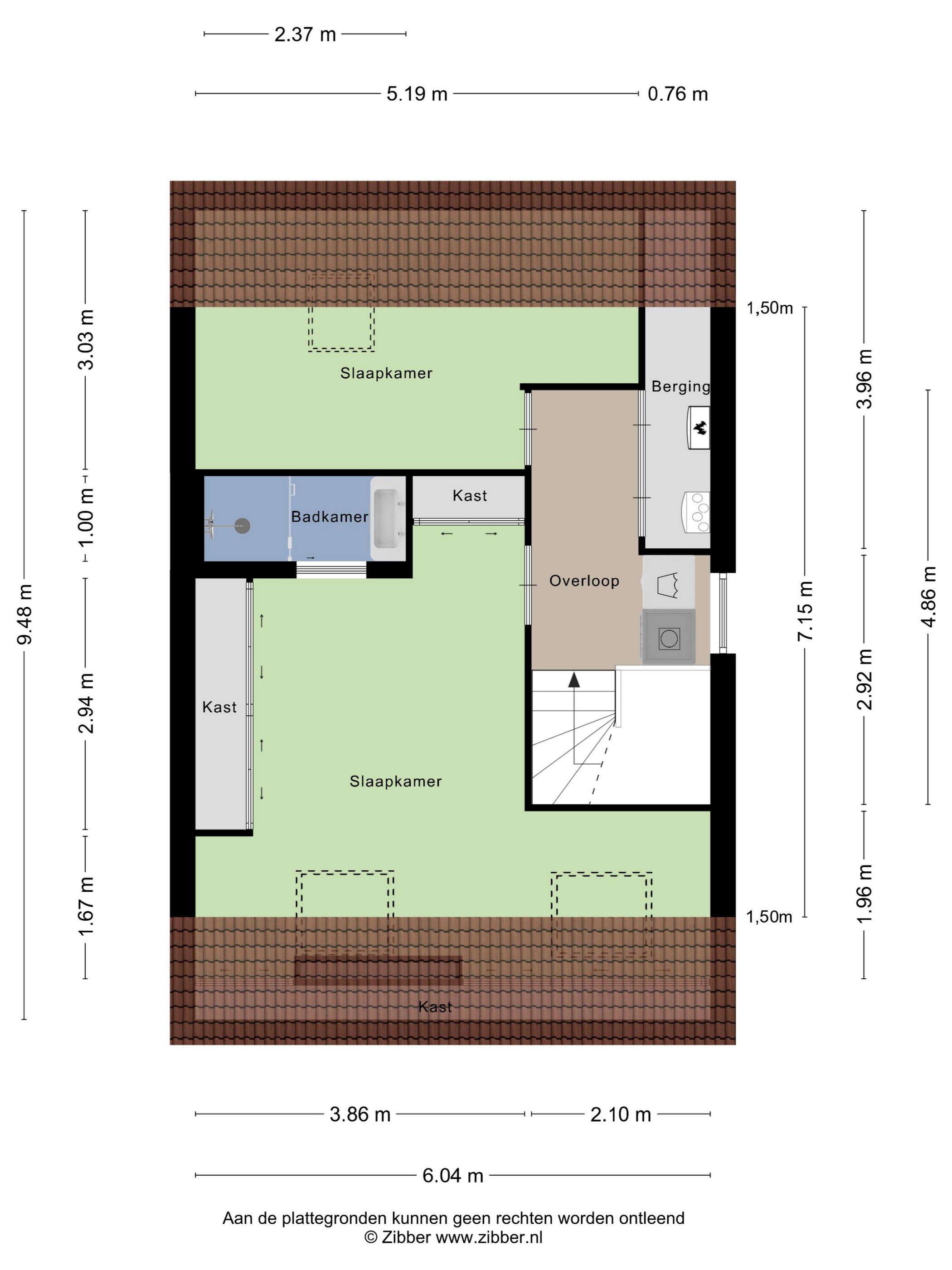
1e Verdieping:
Overloop met trap naar 2e verdieping en toegang tot de badkamer, de 2 slaapkamers, en het 2e toilet.
Slaapkamer 1 aan de achterzijde gelegen. Deze slaapkamer is voorzien van een vaste kast.
Slaapkamer 2 gelegen aan de voorzijde en beschikt eveneens over een vaste kast en heeft een frans balkon.
Moderne badkamer en is voorzien van een inloopdouche, wastafel met meubel en een ligbad.
De 1e verdieping is voorzien van vloerbedekking****

2e Verdieping:
Overloop met toegang tot de derde en vierde slaapkamer, wasruimte en tweede badkamer.
Slaapkamer 3 is aan de voorzijde gelegen, voorzien van twee Velux dakramen en een vaste kast met opstelplaats voor de cv-ketel. Deze kamer beschikt tevens over een eigen badkamer met inloopdouche en wastafelmeubel.
Slaapkamer 4 bevindt zich aan de achterzijde en is voorzien van een dakraam en praktische knieschotten voor extra bergruimte.

Op de overloop bevinden zich de aansluitingen voor de wasmachine en droger.

Ook deze verdieping is voorzien van vloerbedekking****.

Bijzonderheden:
- Bouwjaar 2017;
- Tuingerichte woonkamer;
- Moderne keuken en badkamers;
- Voorzien van maar liefst 24 zonnepanelen;
- Eigen parkeerplaats;
- Op loopafstand van diverse speeltuinen, basisscholen en kinderdagverblijven.

Wij nodigen u van harte uit om deze leuke eengezinswoning met eigen ogen te bewonderen.

Bel of e-mail DB Makelaars voor een vrijblijvende afspraak, vanzelfsprekend ook mogelijk in de avonduren en weekenden.
Alle verstrekte informatie moet beschouwd worden als een uitnodiging tot het doen van een bod of om in onderhandeling te treden. Er kunnen geen rechten worden ontleend aan deze woninginformatie.

Toelichtingsclausule Meetinstructie:
De woning is conform de Branchebrede Meetinstructie (BBMI) opgemeten. De Meetinstructie is bedoeld om een meer eenduidige manier van meten toe te passen voor het geven van een indicatie van de gebruiksoppervlakte. De Meetinstructie sluit verschillen in meetuitkomsten niet volledig uit, door bijvoorbeeld interpretatieverschillen, afrondingen of beperkingen bij het uitvoeren van de meting.

Koopovereenkomst pas rechtsgeldig na ondertekening:
Een mondelinge overeenstemming tussen de particuliere verkoper en de particuliere koper is niet rechtsgeldig. Met andere woorden: er is geen koop. Er is pas sprake van een rechtsgeldige koop als de particuliere verkoper en de particuliere koper de koopovereenkomst hebben ondertekend. Dit vloeit voort uit artikel 7:2 Burgerlijk Wetboek. Een bevestiging van de mondelinge overeenstemming per e-mail of een toegestuurd concept van de koopovereenkomst wordt overigens niet gezien als een 'ondertekende koopovereenkomst'.

Kenmerken

Overdracht
Vraagprijs
€ 825.000 k.k.
Status
beschikbaar
Aanvaarding
in overleg
Bouw
Soort woonhuis
Eengezinswoning
Soort bouw
twee onder een kapwoning
Bouwjaar
2008
Energieklasse
A
Soort dak
zadeldak
Slaapkamers
4
Badkamers
2
Oppervlakten en inhoud
Woonoppervlakte
171 m2
Overige inpandige ruimte
18 m2
Inhoud
668 m3
Perceeloppervlakte
256 m2
faciliteiten
Alarminstallatie
Frans balkon
Zonnepanelen
Baerz & Co Property Brochure

Brochure

Informatie / bezichtigingsaanvraag

Video's

Foto's

Plattegronden