Ons kantoor is lid van Baerz & Co Luxury Homes; een internationaal platform dat exclusieve woningmakelaars met elkaar verbindt. Neem contact op met ons secretariaat voor meer informatie over het landelijke aanbod, waarvan u hieronder een selectie kunt bekijken.

Dubbel benedenhuis te koop in AMSTERDAM

AMSTERDAM Vondelkerkstraat 26 O - 1054 KZ Nederland


Eran Hausel profile image
Eran Hausel
Real Estate Agent
+31 6 46 11 94 28
info@heerenmakelaars.nl

Heeren Makelaars
Stadionweg 75
1077 SE Amsterdam
NETHERLANDS
+31 0204702255
www.heerenmakelaars.nl
info@heerenmakelaars.nl

Woonoppervlakte
117m2
Perceeloppervlakte
93m2
Slaapkamers
3

Omschrijving

Vondelkerkstraat 26 O, 1054 KZ AMSTERDAM

In de geliefde Vondelkerkstraat, op een steenworp afstand van het Vondelpark, bieden wij dit charmante en ruime benedenhuis aan van ca. 117 m² met tuin 20m² op het zuidwesten. De woning is stijlvol ingedeeld met een royale woonkamer, drie slaapkamers en een moderne keuken die in 2022 is vernieuwd. Een ideale combinatie van comfortabel wonen, buitenruimte en een toplocatie in Amsterdam Oud-West.

Ligging & Bereikbaarheid
De woning is gelegen in het populaire Amsterdam Oud-West, aan de charmante Vondelkerkstraat (doodlopend, autoluw). Op steenworp afstand liggen zowel de Jan Pieter Heijestraat als de Amstelveenseweg, waar u een ruim aanbod vindt aan winkels, supermarkten, cafés en restaurants. Het iconische Vondelpark bevindt zich letterlijk op 20 meter afstand en biedt volop mogelijkheden voor sport, recreatie en ontspanning. Daarnaast zijn er diverse scholen, kinderdagverblijven en andere voorzieningen in de nabije omgeving. De bereikbaarheid is uitstekend: met tram en bus bent u binnen enkele minuten in het centrum of bij Station Zuid, en met de auto bereikt u snel de Ringweg A-10.

Indeling

Begane grond
Entree met hal, voorzien van garderoberuimte, vaste kast en separaat toilet. Vanuit de hal bereikt u de royale woonkamer met grote raampartijen en openslaande deuren naar de tuin. Deze charmante ruimte biedt volop mogelijkheden voor een comfortabele zithoek en een royale eettafel. Aan de voorzijde bevindt zich de moderne keuken, volledig vernieuwd in 2022 en uitgerust met een 5-pits gasfornuis, afzuigkap, combi-oven, spoelbak, vaatwasser, koelkast, vriezer en meer dan voldoende kastruimte. Vanuit de woonkamer zijn er openslaande deuren naar de achtertuin, een heerlijke plek om in alle rust buiten te zitten. In de tuin bevindt zich tevens een praktische berging.

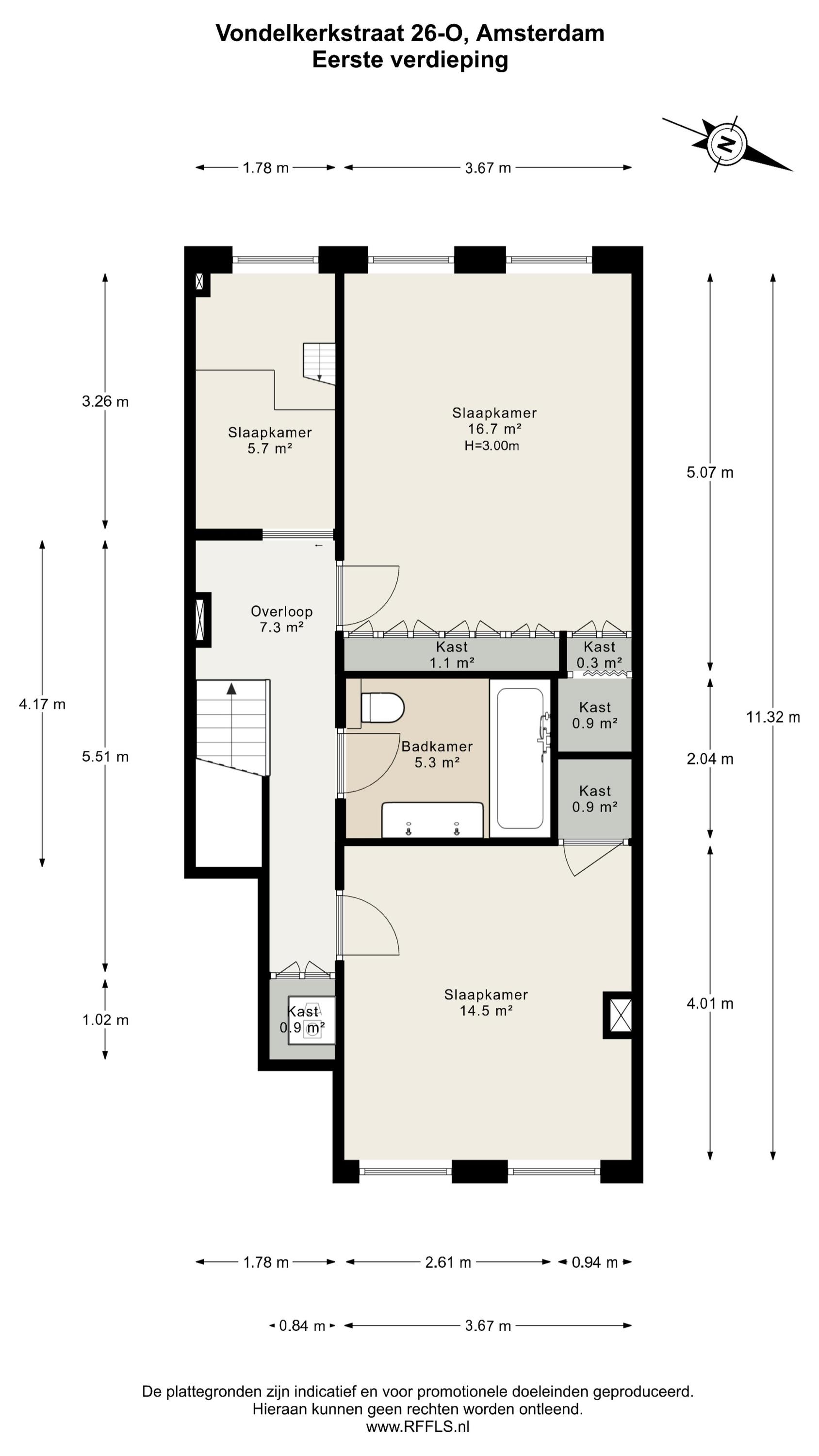
Eerste verdieping
De overloop geeft toegang tot drie slaapkamers en de centraal gelegen badkamer. Aan de achterzijde bevindt zich de riante master bedroom met een plafondhoogte van maar liefst 3 meter, wat zorgt voor een heerlijk ruimtelijk gevoel. Aan de voorzijde treft u een tweede, eveneens goed bemeten slaapkamer. Daarnaast is er nog een derde slaapkamer, ideaal als kinder- of werkkamer. De badkamer is centraal gelegen en voorzien van een ligbad met douche, wastafelmeubel en toilet. Dankzij de diverse vaste kasten is er op deze verdieping veel bergruimte aanwezig.

Bijzonderheden
- Fundering is begin jaren '90 (ca. 1992) projectmatig vervangen. Ook bij de buurpanden.
- Appartementsrecht 117 m² (gemeten conform NEN2580 meetinstructie)
- Tuin op het zuidwesten gelegen 19,6 m² (gemeten conform NEN2580 meetinstructie)
- Drie slaapkamers
- Actieve VvE, servicekosten bedragen € 140 per maand
- VvE bestaande uit 2 leden
- VvE in bezit van MJOP
- Gelegen op eigen grond, dus GEEN erfpacht
- Oplevering in overleg

Deze informatie is door ons met de nodige zorgvuldigheid samengesteld. Onzerzijds wordt echter geen enkele aansprakelijkheid aanvaard voor enige onvolledigheid, onjuistheid of anderszins, dan wel de gevolgen daarvan. Alle opgegeven maten en oppervlakten zijn indicatief. Koper heeft zijn eigen onderzoeksplicht naar alle zaken die voor hem of haar van belang zijn. Met betrekking tot deze woning is de makelaar adviseur van verkoper. Wij adviseren u een deskundige (NVM-)makelaar in te schakelen die u begeleidt bij het aankoopproces. Indien u specifieke wensen heeft omtrent de woning, adviseren wij u deze tijdig kenbaar te maken aan uw aankopend makelaar en hiernaar zelfstandig onderzoek te (laten) doen. Indien u geen deskundige vertegenwoordiger inschakelt, acht u zich volgens de wet deskundige genoeg om alle zaken die van belang zijn te kunnen overzien.

Kenmerken

Overdracht
Vraagprijs
€ 1.200.000 k.k.
Status
verkocht onder voorbehoud
Aanvaarding
in overleg
Bouw
Soort woonhuis
Dubbel benedenhuis
Soort bouw
appartement
Bouwjaar
1883
Energieklasse
B
Soort dak
plat dak
Slaapkamers
3
Badkamers
1
Oppervlakten en inhoud
Woonoppervlakte
117 m2
Overige inpandige ruimte
0 m2
Externe bergruimte
1 m2
Inhoud
414 m3
Perceeloppervlakte
93 m2
faciliteiten
Tv kabel
Natuurlijke ventilatie
Aan park
Aan rustige weg
In centrum
In woonwijk
Baerz & Co Property Brochure

Brochure

Informatie / bezichtigingsaanvraag

Video's

Video Vondelkerkstraat 26 O

Foto's

Plattegronden