Ons kantoor is lid van Baerz & Co Luxury Homes; een internationaal platform dat exclusieve woningmakelaars met elkaar verbindt. Neem contact op met ons secretariaat voor meer informatie over het landelijke aanbod, waarvan u hieronder een selectie kunt bekijken.

BERGSCHENHOEK
Oltmansstraat 17 - 2662 AA
Pays-Bas

Dominique Blom profile image
Dominique Blom
Register Makelaar Taxateur
€998,000 k.k.
Surface habitable
174m2
Superficie du terrain
635m2
Chambres
4

Description

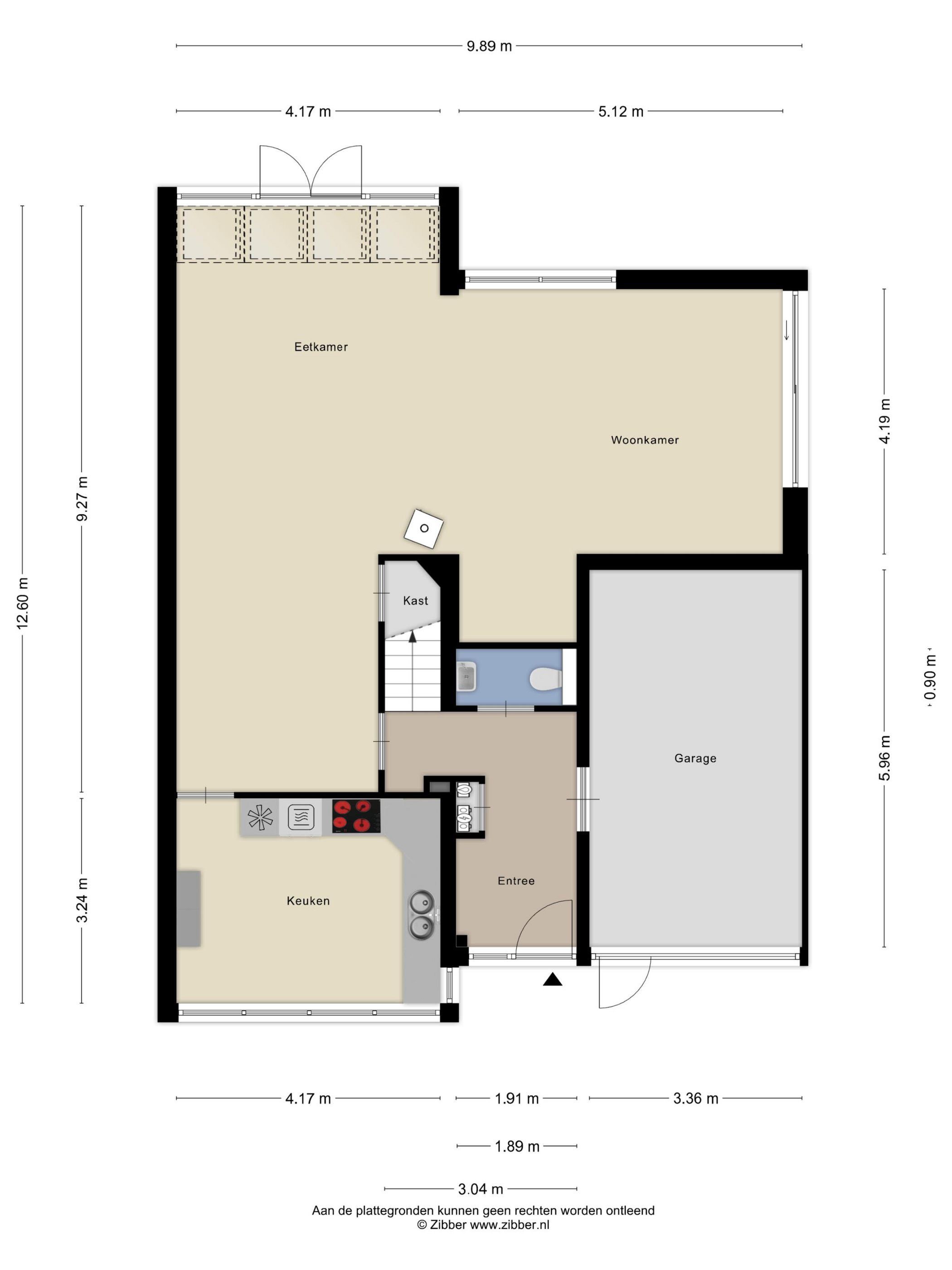
Cette maison mitoyenne à Bergschenhoek offre un équilibre subtil entre volumes et lumière, proposant 174 m² d’espaces de vie soigneusement aménagés. Le jardin exposé à l’ouest, baigné de soleil et bordé par un cours d’eau, confère à la propriété une agréable quiétude et une intimité rare dans un contexte familial. La maison bénéficie d’un emplacement paisible au sein d'une impasse résidentielle propice aux familles, tout en restant à proximité du centre animé de Bergschenhoek.

Dès l’entrée, un hall carrelé mène à un vaste séjour où le chauffage au sol et les portes-fenêtres invitent à la détente dans une atmosphère lumineuse et sereine. La cuisine en L, récemment rénovée, dispose d’électroménagers intégrés et d’un double évier, alliant ainsi fonctionnalité et raffinement. L’accès direct à la terrasse extérieure assure une continuité harmonieuse avec le jardin privé.

Quatre chambres, toutes dotées d’un balcon à la française, offrent des espaces polyvalents pour la famille ou les invités. La salle de bains moderne se distingue par une baignoire, une douche à l’italienne, le chauffage au sol et des finitions choisies avec soin. Au deuxième étage, rangements et buanderie sont organisés de façon optimale, tandis que des détails tels que volets motorisés et protections solaires extérieures témoignent du souci du confort. Sur une parcelle de 635 m², on bénéficie d’une allée privée pour trois voitures et d’un garage attenant. Écoles, parcs et transports en commun sont facilement accessibles, facilitant un quotidien fluide et connecté. Pour ceux qui recherchent une maison mitoyenne à vendre à Bergschenhoek, cette propriété incarne une adresse discrète et accueillante.

Explorez Bergschenhoek avec Baerz, votre conseiller et chercheur de biens immobiliers de confiance



Évitez les pièges courants

Les acheteurs internationaux perdent souvent un temps précieux sur des annonces en double, obsolètes ou trompeuses en ligne, d'autant plus que près de 30% des maisons de luxe n'apparaissent jamais sur le marché public. Les agents du vendeur représentent les intérêts du vendeur, pas ceux de l'acheteur. Même demander des informations sur une propriété peut entraîner l'enregistrement par un agent du vendeur comme leur « client » sans votre consentement.
Avec Baerz Property Finders & Advisors, vous évitez entièrement tous ces pièges. Nous travaillons uniquement en votre nom, offrant une représentation indépendante, des conseils clairs et un accès à toutes les propriétés disponibles, y compris les opportunités hors marché que d'autres ne voient jamais.

Intéressé par un conseiller personnel en immobilier ?

Nous vous montrons toutes les maisons disponibles en un seul endroit. N'hésitez pas à nous contacter pour savoir comment nous pouvons répondre à vos besoins et protéger vos intérêts exclusivement.

Caractéristiques

Transfert de propriété
Prix demandé
€ 998.000 k.k.
Statut
beschikbaar
Acceptation
in overleg
Construction
Type de maison
Eengezinswoning
Type de bâtiment
geschakelde woning
Période de construction
2001
Classe énergétique
A
Type de toit
lessenaardak
Chambres
4
Salles de bain
1
Surfaces et volume
Surface habitable
174 m2
Autre espace intérieur
20 m2
Espace de stockage externe
2 m2
Volume en mètres cubes
685 m3
Superficie du terrain
635 m2
Installations
Mechanische ventilatie
Rolluiken
Buitenzonwering
Frans balkon
Glasvezel kabel
Aan water
In woonwijk
Beschutte ligging
Baerz & Co Property Brochure

Brochure

Vidéos

DB Makelaars

Dorpsstraat 79
2661 CE Bergschenhoek

dominique@dbmakelaars.nl
+31 107850833

www.dbmakelaars.nl

Demande d'information / de visite

Dominique Blom profile image
Dominique Blom
Register Makelaar Taxateur