Baerz & Co is een landelijk samenwerkingsverband van zorgvuldig geselecteerde boutique luxury makelaars. Samen vormen wij één netwerk, met één gedeeld aanbod. De woningen die u op onze website ziet, zijn afkomstig van alle aangesloten kantoren binnen Baerz & Co. Daardoor is niet ieder object rechtstreeks door ons kantoor in verkoop, maar door een gespecialiseerde collega binnen ons netwerk. Heeft u een woning gevonden die u aanspreekt en wilt u meer informatie? Dan brengen wij u graag persoonlijk in contact met de betreffende verkoopmakelaar, zodat u direct en zorgvuldig wordt begeleid.

UITHOORN
Faunalaan 93 - 1422 ZH
Netherlands

Joris van Oosten profile image
Joris van Oosten
Real Estate Agent
€1,343,000 k.k.
Living Area
290m2
Plot Size
445m2
Bedrooms
6

Description

This spacious, detached villa, connected by the garage, is centrally located in the popular Legmeer-West residential area. From the very first moment, the villa feels generous, warm, and inviting. The large plot, wide driveway with space for multiple cars, and the quiet, well-laid-out street create a perfect first impression. Originally built as a practice home, the property features two entrances – a unique advantage for those seeking a home office or practice space, but also ideal for families who value flexibility and extra living space.

Layout of this fantastic villa:

GROUND FLOOR
Upon arrival, you are first greeted by the covered entrance, which leads you warmly and sheltered into the house. In the representative hallway, you immediately feel the generous proportions; the meter cupboard, staircase, cloakroom, and under-stair storage are cleverly concealed, and a modern toilet with a hand basin completes the picture.

Step into the spacious living room, and you are struck by its light-filled character. The many windows allow natural light to flood in, creating a seamless connection between inside and outside. At the front of the house is the dining room with a charming bay window – a perfect spot to enjoy the morning sun at breakfast or host cozy dinners. The heart of the home features the open kitchen, with a large cooking island and cabinets on both sides offering everything a home chef could wish for. The kitchen is equipped with an induction hob, extractor hood, dishwasher, and Quooker. The tall cabinet wall houses a fridge-freezer, coffee machine, steam oven, and two combination ovens with warming drawers – everything within easy reach.

The large seating area at the rear exudes peace and comfort. A gas fireplace adds warmth and atmosphere, while the French doors provide direct access to the backyard, allowing you to enjoy sun and greenery all year round. From the living room, you can access the garage, seamlessly connecting indoor and outdoor spaces, living, and storage. From the kitchen, a door leads to a second hallway with its own entrance, providing access to a multifunctional room. Currently used as a gym, this space is equally suitable as an office, practice, or playroom thanks to its private entrance. The ground floor is finished with a beautiful French oak floor with underfloor heating, adding warmth and style, with the exception of the garage.

FIRST FLOOR
On the first floor, a spacious landing provides access to three bright and comfortable bedrooms. The master bedroom feels like a true retreat – generous and serene – while the side bedroom with a bay window and the third front-facing bedroom are flexible in use, ideal for children, guests, or a home office. The bathroom is a place of relaxation: a shower with both hand and rain shower, a bathtub, a double vanity, and subtle recessed lighting create a luxurious atmosphere. A separate toilet completes the floor.

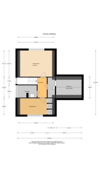
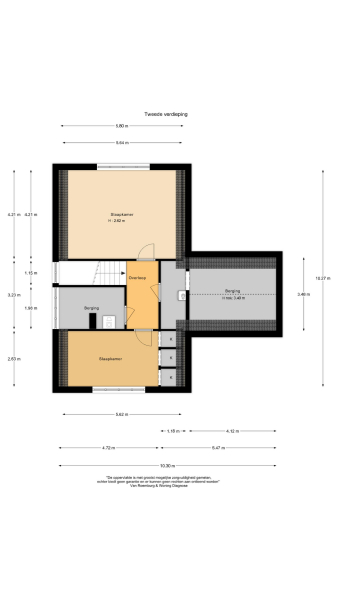
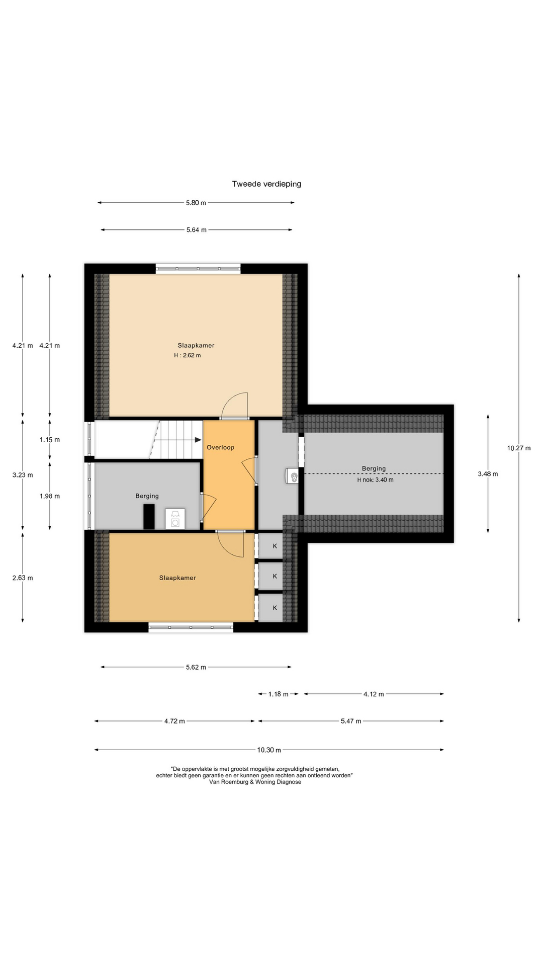
SECOND FLOOR
The second floor offers even more surprising space. There are two additional bedrooms, the front one featuring built-in wardrobes for added comfort and organization. From the landing, a separate room houses the connections for the washer and dryer, where a second bathroom could easily be created. Additionally, there is a technical room with a cupboard leading to an exceptionally spacious storage area, ideal for seasonal items or anything you want to keep out of sight.

GARDEN
The garden is a true sanctuary. Wide and sunny, with multiple terraces, a pond, artificial grass, and a back entrance. Its sheltered location and the option to install a jacuzzi make this outdoor space perfect for relaxation, drinks, or summer barbecues with friends.

GARAGE
The garage is not only practical, with an electric roll-up door, water, electricity, and heating, but it can also serve as a workshop, storage, or hobby space.

HIGHLIGHTS

* Two entrances, ideal for a home office, practice, or studio
* Garden-facing living room with abundant natural light and French doors
* Open kitchen with cooking island and high-quality appliances
* Five bedrooms and an exceptionally large storage space on the second floor
* Multifunctional room with private entrance (currently a gym)
* Wide driveway for multiple cars and ample street parking
* Broad, sunny garden with terraces, pond, back entrance, and space for a jacuzzi
* Garage with electric roll-up door, water, electricity, and heating
* Energy-efficient with 18 solar panels and a hybrid heat pump
* Walking distance to the rapid tram to Amsterdam
* Quiet, green street with low traffic
* Ideal location near schools, sports facilities, and parks

The Legmeer-West area greatly enhances the living experience. The neighborhood is spacious, has a calm 1930s appearance, and features low-traffic streets where children can play safely. Playgrounds, parks, childcare, primary and secondary schools are all within easy reach. Sports enthusiasts have plenty of options as well: hockey, football, athletics, BMX, cycling clubs, and various gyms. Residents and the municipality organize activities throughout the year for all ages, giving the neighborhood a connected and lively character. Less than 200 meters away is the rapid tram stop to Amsterdam, making it possible to reach the city center in no time – a particularly attractive feature for commuters.

Uithoorn itself is a wonderful place to live. Within walking or cycling distance, you will find numerous shops, restaurants, and cozy terraces. The surrounding area offers beautiful routes for walking or cycling, and water lovers have the Amstel, the Westeinderplassen, and the Kromme Mijdrecht nearby. Accessibility is excellent: by (electric) bike or public transport, you can easily reach Amsterdam, Haarlem, or Utrecht. From the bus station, you can travel to Schiphol, Hoofddorp, or Amstelveen, and the Amsteltram takes you directly from Aan de Zoom stop to Amsterdam-Zuid. This home perfectly combines generous living space, versatile possibilities, and a pleasant, green environment – a place where daily life effortlessly blends comfort, tranquility, and accessibility.

This villa in Uithoorn combines exceptional living space with high-quality finishes and a location that is both peaceful and central. It is an ideal home for those seeking space without compromising on comfort or style. Contact us for more information or a personal tour – we would be delighted to show you what makes this property so special.

Features

Solar panels
Transfer of ownership
Asking Price
€ 1.343.000 k.k.
Status
onder bod
Acceptance
in overleg
Construction
Kind of house
Villa
Building type
geschakelde woning
Construction period
2009
Energy rating
A
Roof type
samengesteld dak
Bedrooms
6
Bathrooms
1
Surface Areas And Volume
Living Area
290 m2
Other indoor space
22 m2
Volume in cubic meters
1116 m3
Plot Size
445 m2
Facilities
Mechanische ventilatie
Tv kabel
Rookkanaal
Dakraam
Zonnepanelen
Balansventilatie
Natuurlijke ventilatie
Aan rustige weg
In woonwijk
Baerz & Co Property Brochure

Brochure

Videos

Floor Plans

J.J. Van Oosten Makelaardij BV

Straatweg 225
3054 AG Rotterdam

info@vanoostenmakelaardij.nl
+31 10 422 11 00

www.vanoostenmakelaardij.nl

Information / Viewing request

Joris van Oosten profile image
Joris van Oosten
Real Estate Agent

Buying a Luxury Property in Uithoorn

Uithoorn offers a refined community, tranquil scenery, and expert property advisory services. Its attractive lifestyle, investment prospects, and discreet international appeal resonate with sophisticated residents and investors alike.