Baerz & Co is een landelijk samenwerkingsverband van zorgvuldig geselecteerde boutique luxury makelaars. Samen vormen wij één netwerk, met één gedeeld aanbod. De woningen die u op onze website ziet, zijn afkomstig van alle aangesloten kantoren binnen Baerz & Co. Daardoor is niet ieder object rechtstreeks door ons kantoor in verkoop, maar door een gespecialiseerde collega binnen ons netwerk. Heeft u een woning gevonden die u aanspreekt en wilt u meer informatie? Dan brengen wij u graag persoonlijk in contact met de betreffende verkoopmakelaar, zodat u direct en zorgvuldig wordt begeleid.

ROERMOND
Het Ham 16 - 6041 SM
Netherlands

€1,695,000
Living Area
237m2
Plot Size
1130m2
Bedrooms
3

Description

In a truly unique location, where the Hambeek makes its final graceful curve before flowing into the river Maas, you will find this exceptionally turnkey and luxurious villa. Situated on the largest plot in Het Ham, the property is perfectly positioned to take full advantage of its surroundings. Within walking distance of the vibrant city centre and equipped with a private jetty, this villa offers a rare combination of tranquillity, privacy, and direct access to the water. Step onto your boat from your own jetty and within minutes you are on the Maas and the expansive Maasplassen, ready to enjoy the beautiful waterscape.

This exclusive waterfront villa stands out not only for its phenomenal location, but also for its modern architecture, abundant natural light, and superb level of finish. The generous living spaces, playful layout, and seamless connection between indoors and outdoors create an unparalleled living experience. Here, you can enjoy the comfort and luxury befitting a home in the absolute top segment every single day.

The property is fully future?proof: gas?free and sustainably built. The entire house features a modern large?format tiled floor on the ground level and a PVC herringbone floor on the first floor, all equipped with underfloor heating and cooling, individually adjustable per room. Heating is provided by a heat pump. With 33 solar panels generating electricity, the home is energy?neutral.

Because everything here fits together so perfectly, there is even the option to take over the interior. This makes moving in truly effortless.

A rare opportunity — properties like this seldom come to market.

Layout

Ground Floor
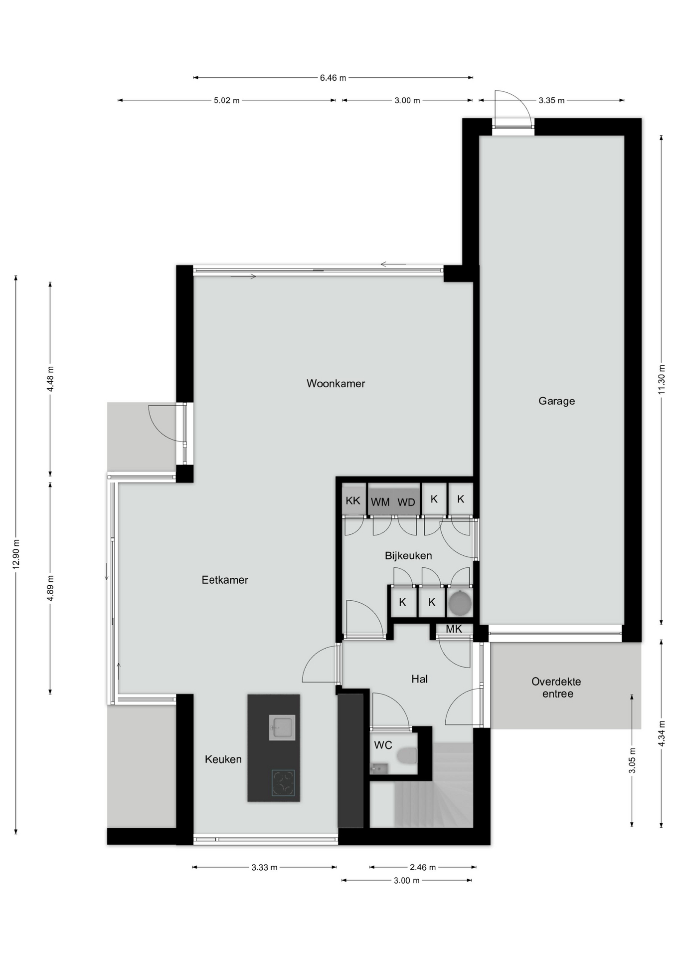
Upon entering the hallway, you will find the meter cupboard and a spacious guest toilet with washbasin. From the generous entrance hall, you have access to the first floor, the living area, and the practical utility room.

In the living area, the sense of space and the large windows immediately stand out, providing abundant natural daylight and a strong connection with the surroundings. The large windows are fitted with electrically operated curtains.
There is a seamless flow between the luxurious kitchen with cooking island, the dining area, and the living room — perfect for entertaining guests and creating a warm, inviting atmosphere. The ground floor is a fantastic place to spend quality time with family and friends. From every angle, you enjoy beautiful views of the garden. And on sunny days, simply open the sliding doors to create a wonderful indoor?outdoor living experience.

The luxurious kitchen at the front of the house is equipped with Miele built?in appliances, including a coffee machine, convection oven, steam oven, Bora induction hob with integrated extraction, dishwasher, wine climate cabinet, and various storage cabinets and drawers. From the kitchen, you have a lovely view of the beautifully landscaped front garden.

The utility room features a custom?made wall of cabinets, including a refrigerator, storage units, and a raised washing machine setup. From here, you have access to the spacious integrated garage of approx. 38 m². This garage is fully finished with plastered and painted walls and ceilings, the same large tiled floor with underfloor heating and cooling. Due to its size and finish, it can be arranged entirely to your own wishes:
Whether you envision a garage for one or two cars, a boat or other vehicles, a home studio, a ground?floor bedroom with bathroom, a home office, or a playroom — everything is possible here.

First Floor
The first floor offers three spacious bedrooms, a luxurious bathroom, and a separate toilet. The bedrooms and landing feature the same modern, threshold?free PVC herringbone floor. Underfloor heating and cooling are also present on this level. One of the bedrooms includes a custom?made wardrobe wall.
The two largest bedrooms provide access to a generous roof terrace with stunning views over the water — a wonderful place to relax.
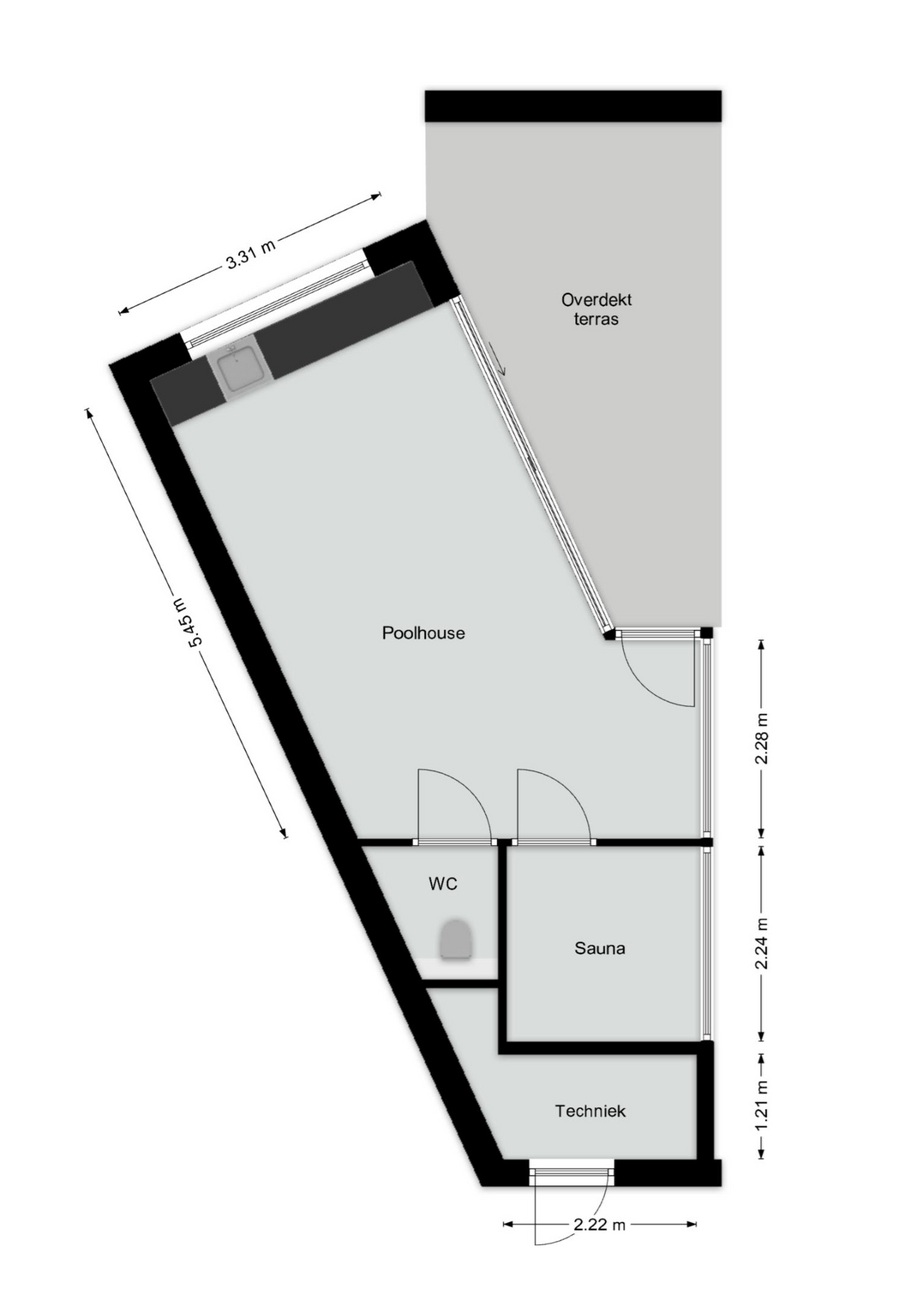
The bathroom is equipped with a spacious walk?in shower, bathtub, double washbasin with cabinet, and a practical storage wall. A separate storage room houses the technical installations.

Garden
Outdoor living at its finest. The surrounding garden was professionally designed and landscaped, forming a true extension of the home. Here you enjoy optimal privacy, various sunny and shaded areas, and panoramic views over the water — a true oasis.

At the front, the villa is embraced by a generous garden that immediately sets the tone for the exclusive character of the property. The carefully designed combination of modern paving and green borders creates a harmonious and refined whole. The private driveway, finished with high?quality tiles and subtle greenery, leads you stylishly to the entrance.
A beautiful half?height wall with an oversized integrated mailbox accentuates the entrance — a detail that blends luxury with functionality. An advanced intercom system and electric entrance gate complete the picture, enhancing comfort, privacy, and security.

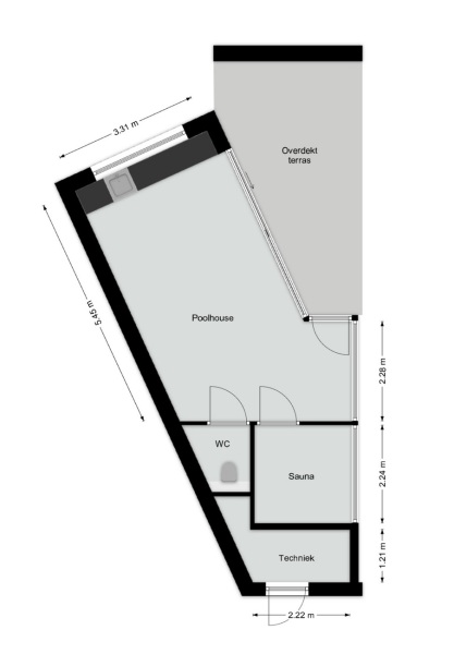
The spacious side and rear gardens are finished to the same high standard. A true highlight is the luxurious pool house, complete with sauna and swimming pool. The carefully selected Finnish wooden interior creates an ultimate wellness atmosphere. Upon entering, the rotating wood?burning stove immediately catches the eye — a real statement piece.
This exclusive outdoor retreat (approx. 55 m² including canopy) allows year?round enjoyment of relaxation and comfort. Whether it’s a refreshing dip on a summer day or a cosy evening with family and friends, this outdoor space offers the ultimate holiday feeling at home.

The pool house is equipped with a kitchenette with sink, wine climate cabinet, refrigerator, induction hob with Bora extraction, and various storage cabinets. Built?in speakers and lighting are also present. Outside, you will find an outdoor shower with thermostatic tap. A separate room houses all technical installations.

Multiple terraces invite you to enjoy long dinners, drinks, or peaceful moments in the sun. The garden features lawn, gravel, and various plantings — a perfect balance between greenery and the modern character of the home.
From the garden, a staircase leads down to your private jetty, where you can step directly into your boat. Within minutes, you are on the Maas and Maasplassen for a perfect day on the water.

Key Features
- Detached living in a unique location;
- Living area of 237 m², including 36 m² pool house;
- Architectural masterpiece;
- Turnkey — ready to enjoy;
- Exceptional living experience with luxury and comfort;
- Private jetty;
- Option to take over the interior;
- Modern, high?quality materials;
- Fully equipped with Philips Hue;
- Numerous extras, including electric curtains, high?quality alarm system, and perimeter cameras;
- Premium outdoor living with luxury pool house, sauna, and outdoor pool (with dedicated heat pump);
- Fully insulated, sustainable, and energy?neutral;
- Energy label A+++;
- Fantastic location along the Hambeek, right on the edge of the city centre;
- Excellent accessibility via the A73.

Surroundings
The waterfront villa is located in the recently developed, small?scale residential area Parkwijk ’t Ham. This green neighbourhood is nestled in a bend of the Hambeek, just before it flows into the Maas. The area is wonderfully peaceful, with mainly local traffic due to its loop?shaped layout.

Peace and space define this attractive green environment, just minutes from the charming city centre with its rich cultural heritage and vibrant shopping district. Beautiful walking routes can be found nearby.
Water sports and nature lovers will enjoy the Maasplassen area, accessible by bike and directly reachable by boat. With its chain of small and large lakes set in a wide, green landscape, it is a paradise for outdoor enthusiasts.
Roermond offers excellent road connections (A2 and A73), making cities such as Maastricht, Venlo, and Eindhoven reachable within 30 minutes.

Features

Solar panels
Alarm system
Transfer of ownership
Asking Price
€ 1.695.000
Status
beschikbaar
Acceptance
in overleg
Construction
Kind of house
Villa
Building type
vrijstaande woning
Construction period
2023
Energy rating
A+++
Roof type
plat dak
Bedrooms
3
Bathrooms
1
Surface Areas And Volume
Living Area
237 m2
Other indoor space
0 m2
Exterior space attached to the buildinge
22 m2
Volume in cubic meters
774 m3
Plot Size
1130 m2
Facilities
Mechanische ventilatie
Alarminstallatie
Tv kabel
Buitenzonwering
Schuifpui
Glasvezel kabel
Domotica
Zonnepanelen
Balansventilatie
Aan water
Aan rustige weg
In woonwijk
Vrij uitzicht
Aan vaarwater
Baerz & Co Property Brochure

Brochure

Videos

Floor Plans

J.J. Van Oosten Makelaardij BV

Straatweg 225
3054 AG Rotterdam

info@vanoostenmakelaardij.nl
+31 10 422 11 00

www.vanoostenmakelaardij.nl

Information / Viewing request

Joris van Oosten profile image
Joris van Oosten
Real Estate Agent

Buying a Luxury Property in Roermond

Roermond balances cultural refinement, international connectivity, and exceptional property services. Its vibrant community and lakeside lifestyle attract global residents, ensuring enduring appeal and opportunities for discerning property stakeholders.