Baerz & Co is een landelijk samenwerkingsverband van zorgvuldig geselecteerde boutique luxury makelaars. Samen vormen wij één netwerk, met één gedeeld aanbod. De woningen die u op onze website ziet, zijn afkomstig van alle aangesloten kantoren binnen Baerz & Co. Daardoor is niet ieder object rechtstreeks door ons kantoor in verkoop, maar door een gespecialiseerde collega binnen ons netwerk. Heeft u een woning gevonden die u aanspreekt en wilt u meer informatie? Dan brengen wij u graag persoonlijk in contact met de betreffende verkoopmakelaar, zodat u direct en zorgvuldig wordt begeleid.

AMSTERDAM
Nieuwe Spiegelstraat 43 1 - 1017 DC
Netherlands

Joris van Oosten profile image
Joris van Oosten
Real Estate Agent
€1,595,000 k.k.
Living Area
180m2
Plot Size
N/A
Bedrooms
5

Description

Nieuwe Spiegelstraat 43-1, 1017 DC Amsterdam

Exceptionally spacious and bright upper residence (approx. 180 m²) with a south-facing roof terrace of approx. 44 m², balcony, large kitchen-diner, and charming living area — all in a prime location in Amsterdam! The property has a new foundation, new façade, new rear window frames, and has been fully repainted inside and out.

Situated in one of Amsterdam’s most desirable areas, this beautifully light and characterful family home spans three floors and offers exceptional living comfort, featuring five bedrooms, a generous living room, and a cozy kitchen-diner.

This characteristic building is located on Nieuwe Spiegelstraat, surrounded by Amsterdam’s iconic canals. Due to its special position at the corner of Kerkstraat and its spacious roof terrace, the property is truly unique.

Location & Accessibility

The property lies in the Spiegelkwartier, between Leidsestraat and Vijzelstraat, an area renowned for its boutiques, restaurants, and charming cafés. The beautiful Amstelveld, Royal Theater Carré, and popular shopping streets such as Utrechtsestraat, P.C. Hooftstraat, and the famous Nine Streets are all nearby. The Vondelpark is just a five-minute bike ride away!
With the Rijksmuseum only a three-minute walk, residents enjoy a top-tier location to experience the best of Amsterdam’s cultural and architectural highlights — along with stunning views of one of the city’s most picturesque areas.

Accessibility is excellent. The Vijzelgracht metro station (North/South line) is a short walk away, taking you to Amsterdam Central Station in just four minutes, the Zuidas business district in six, and Schiphol Airport in twenty. Amstel Station and Weesperplein metro are also nearby. Tram stops for lines 1, 7, 19 (Spiegelgracht/Rijksmuseum), line 24 (Vijzelstraat), and line 4 (Utrechtsestraat) are all easily accessible.
By car, the property connects quickly to the A10 and A2 ring roads via the S100 and S110. Parking is available through the municipal permit system or in the nearby underground parking garage at Vijzelgracht.

Layout

Private entrance

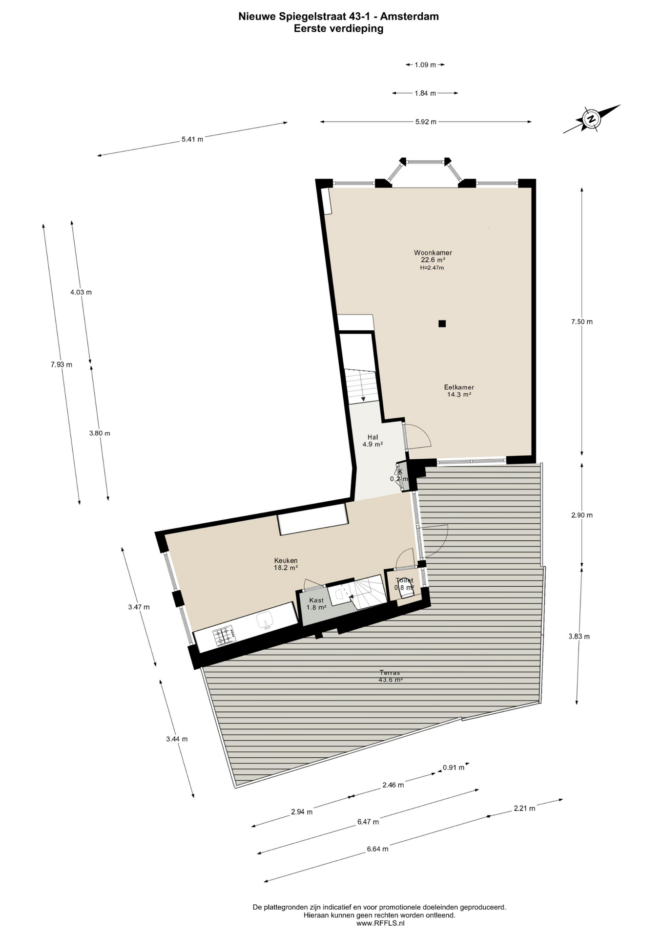
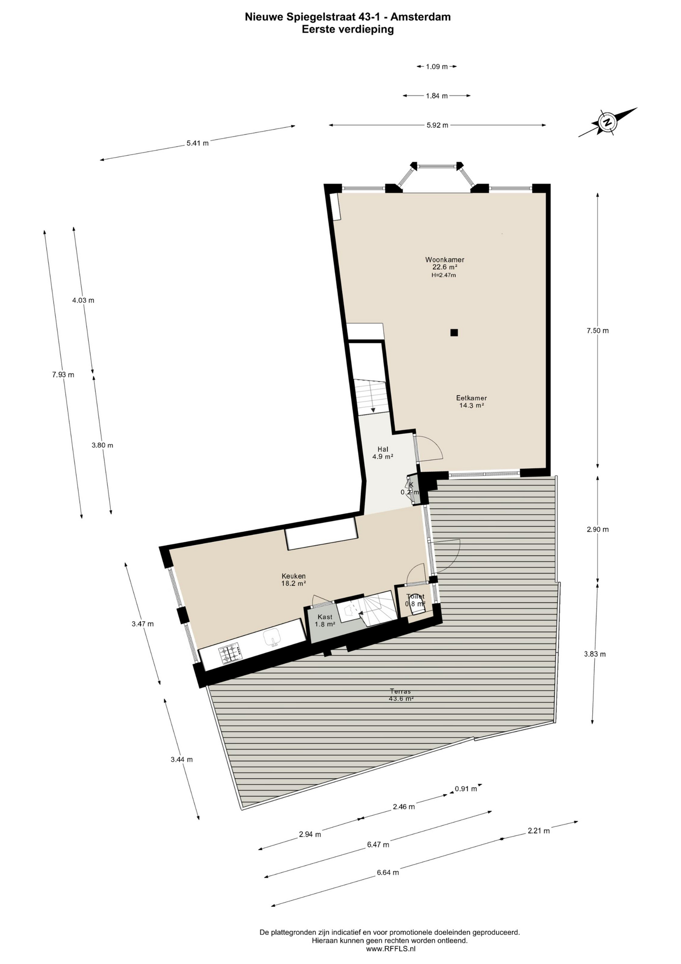
First floor

Entrance hall providing access to all rooms. Separate toilet.
The lovely kitchen faces Kerkstraat and is equipped with various built-in appliances, including a 5-burner gas stove, combi-oven, oven, dishwasher, dryer, and fridge/freezer. There is also a cupboard with washing machine connection and central heating installation.
The spacious living room overlooks Nieuwe Spiegelstraat and receives abundant natural light. The bay window offers a beautiful view of the Rijksmuseum. From the kitchen, you can access the large south-facing roof terrace (approx. 44 m²) — a true rarity in this area. Authentic wooden flooring extends throughout this level.

Second floor

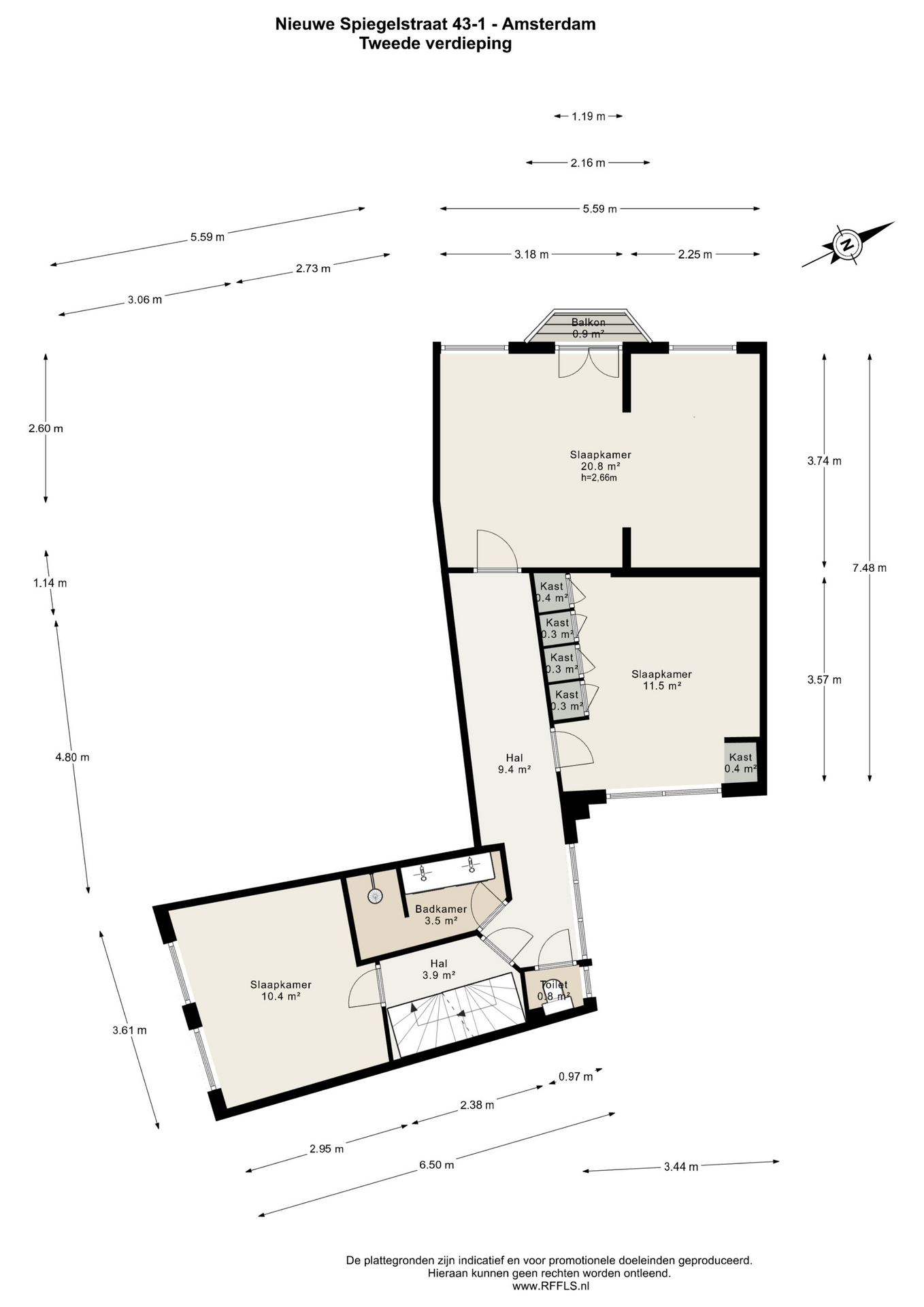
An internal staircase leads to the second floor. The first bedroom is located at the Kerkstraat side. Separate toilet.
Bright hallway with partial view of the roof terrace. The bathroom features a double washbasin and walk-in shower.
The second bedroom is generously sized and includes built-in wardrobes. At the front is a large bedroom with space for a walk-in closet. French doors open onto a balcony facing Nieuwe Spiegelstraat with a fantastic view.

Third floor

The internal staircase continues to the third floor, which is fully equipped as a self-contained apartment — ideal for an au pair or older child! It includes a bedroom with built-in wardrobes (and a second central heating unit), connections for washing machine and dryer, a compact kitchen, bathroom with toilet and shower, and a very spacious room that can be used as bedroom, study, or living area.

This floor has recently been fitted with a beautiful herringbone PVC floor.

Nieuwe Spiegelstraat
Named after a well-known Amsterdam family of soap manufacturers. The street was first built in 1665, and it is presumed that a member of the Spiegel family gave it its name.
(Source: Stadsatlas Amsterdam)

Details

- Apartment right of approx. 180 m² (measured in accordance with NEN2580 standard)
- Located on freehold land (no ground lease!)
- Unique roof terrace (approx. 44 m²)
- New foundation (2025)
- New paintwork inside and out (2025)
- Partly new hardwood window frames with HR++ glass at the rear (2025)
- New front façade
- Small homeowners’ association (2 members)
- Maintenance plan (MJOP) available
- Subdivision permit possible subject to permit
- Energielabel D
- Situated within a listed cityscape (Rijksbeschermd stadsgezicht)
- Parking via municipal permit system (source: Municipality of Amsterdam)
- Project notary: Hartman LMH
- Transfer date: in consultation

Disclaimer

This information has been compiled with the utmost care. However, no liability is accepted for any inaccuracies, omissions, or consequences thereof. All measurements and surface areas are indicative. Buyers are responsible for conducting their own due diligence. The selling agent represents the seller. We recommend engaging a professional (NVM) purchasing agent to guide you through the acquisition process. If you have specific requirements, please communicate them to your agent and verify them independently. If you choose not to appoint a professional representative, you acknowledge that you have sufficient expertise to assess all relevant matters. NVM terms and conditions apply.

Features

Transfer of ownership
Asking Price
€ 1.595.000 k.k.
Status
verkocht onder voorbehoud
Acceptance
in overleg
Construction
Kind of house
Bovenwoning
Building type
dubbel bovenhuis
Construction period
1743
Energy rating
D
Roof type
samengesteld dak
Bedrooms
5
Bathrooms
2
Surface Areas And Volume
Living Area
180 m2
Other indoor space
0 m2
Exterior space attached to the buildinge
45 m2
Volume in cubic meters
641 m3
Facilities
Mechanische ventilatie
Tv kabel
Dakraam
Natuurlijke ventilatie
In centrum
Baerz & Co Property Brochure

Brochure

Videos

J.J. Van Oosten Makelaardij BV

Straatweg 225
3054 AG Rotterdam

info@vanoostenmakelaardij.nl
+31 10 422 11 00

www.vanoostenmakelaardij.nl

Information / Viewing request

Joris van Oosten profile image
Joris van Oosten
Real Estate Agent

Buying a Luxury Property in Amsterdam

Amsterdam offers a cosmopolitan lifestyle defined by heritage, connectivity, and discreet luxury. Residents benefit from a robust international community, curated services, and vibrant culture. The city’s enduring appeal lies in its blend of history, sophistication, and progressive spirit.