Ons kantoor is lid van Baerz & Co Luxury Homes; een internationaal platform dat exclusieve woningmakelaars met elkaar verbindt. Neem contact op met ons secretariaat voor meer informatie over het landelijke aanbod, waarvan u hieronder een selectie kunt bekijken.

AMSTERDAM, NH
Kalverstraat 218 E - 1012 XJ
Netherlands

Niels Eering profile image
Niels Eering
Real Estate Agent
€3,250 p.m.
Living Area
72m2
Plot Size
N/A
Bedrooms
2

Description

Kalverstraat 218 E in Amsterdam

Call now to schedule a viewing of this bright and surprisingly quiet 2-bedroom apartment of approx. 72 m², located on the second floor of a modern and well-maintained building (1997) with lift and separate storage room.

Although the apartment is literally located in the heart of Amsterdam, the home offers surprisingly much tranquillity due to the modern construction quality.
Thanks to the excellent insulation, you live here comfortably, quietly and energy-efficiently, while everything that makes the city so unique takes place right outside your front door.

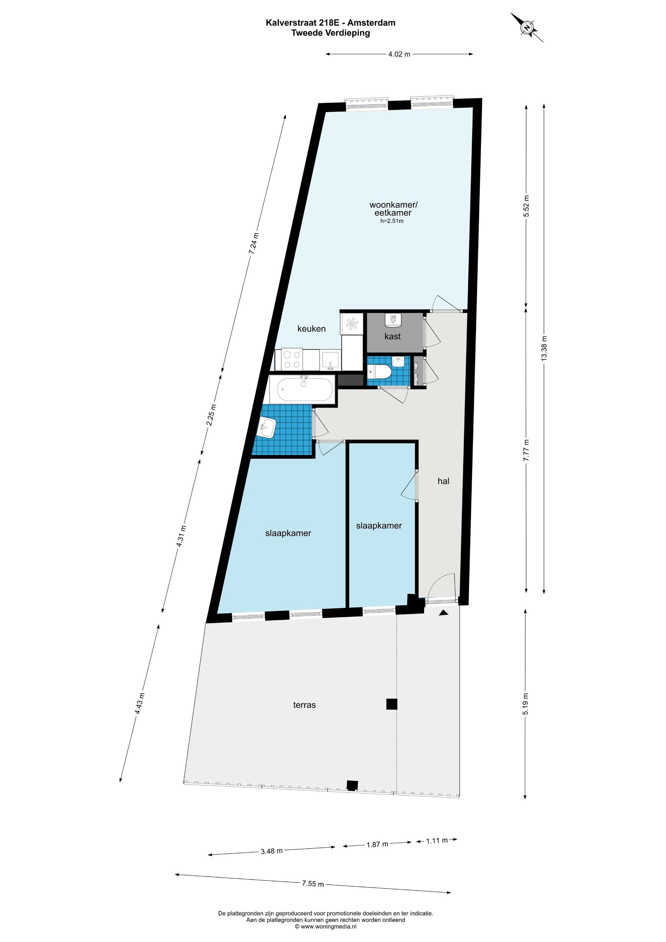
Layout
Through the central entrance on the Kalverstraat, you enter the neat communal hall. With the lift you easily reach the second floor, where a spacious terrace is located directly in front of the door – an ideal spot for a morning coffee or a pleasant place to sit at the end of the day.

The entrance of the apartment opens into a spacious hall that gives access to all rooms. On the terrace side are two well-sized bedrooms, both suitable as sleeping room, office or guest room. The bathroom is equipped with a bathtub and a modern washbasin unit. In addition, there is a separate toilet and a practical storage space with connections for washing machine and dryer, plus the central heating combi boiler.

At the front is the bright living room with open kitchen. Thanks to the two French doors with French balconies, you enjoy a lively view of the Kalverstraat while daylight floods in. The kitchen is fitted with various built-in appliances and offers sufficient work and cupboard space. The home is finished with a neat oak parquet floor, which provides a warm appearance.

Location & accessibility
The location is truly ideal: between Rokin, Singel and Heiligeweg, amidst shops, boutiques, cafés and restaurants. Facilities such as supermarkets, gyms, cultural institutions and entertainment venues are also within walking distance.
For those who travel regularly: tram and metro stops, including the North/South line, are around the corner. By car, you can quickly reach the A10 ring road via the IJ tunnel or Piet Hein tunnel. Despite the vibrant surroundings, you live in a modern, quiet apartment with all comforts within easy reach.

Details
Living area approx. 72 m²
Year of construction 1997
Two bedrooms
Modern and neat finish
Separate storage room of approx. 7 m² in the basement
Lift present
Comfortable and well-insulated apartment
Located in an absolute prime location in the city centre

Features

Transfer of ownership
Rental Price
€ 3.250 p.m.
Status
beschikbaar
Acceptance
in overleg
Construction
Kind of house
Bovenwoning
Building type
appartement
Construction period
1997
Energy rating
C
Roof type
plat dak
Bedrooms
2
Bathrooms
1
Surface Areas And Volume
Living Area
72 m2
Other indoor space
0 m2
Exterior space attached to the buildinge
34 m2
External storage space
7 m2
Volume in cubic meters
220 m3
Facilities
Mechanische ventilatie
Tv kabel
Lift
Frans balkon
In centrum
Beschutte ligging
Baerz & Co Property Brochure

Brochure

Videos

11 Makelaars - Amsterdam Noord

Mt. Lincolnweg 36 - 617
1033SN Amsterdam

info@11makelaars.nl
+31 20 20 50 208

www.11makelaars.nl

Information / Viewing request

Niels Eering profile image
Niels Eering
Real Estate Agent