Baerz & Co is een landelijk samenwerkingsverband van zorgvuldig geselecteerde boutique luxury makelaars. Samen vormen wij één netwerk, met één gedeeld aanbod. De woningen die u op onze website ziet, zijn afkomstig van alle aangesloten kantoren binnen Baerz & Co. Daardoor is niet ieder object rechtstreeks door ons kantoor in verkoop, maar door een gespecialiseerde collega binnen ons netwerk. Heeft u een woning gevonden die u aanspreekt en wilt u meer informatie? Dan brengen wij u graag persoonlijk in contact met de betreffende verkoopmakelaar, zodat u direct en zorgvuldig wordt begeleid.

AMSTERDAM
Amsteldijk 143 3 - 1079 LE
Netherlands

€850,000
Living Area
82m2
Plot Size
134m2
Bedrooms
3

Description

Amsteldijk 143 3, 1079 LE Amsterdam

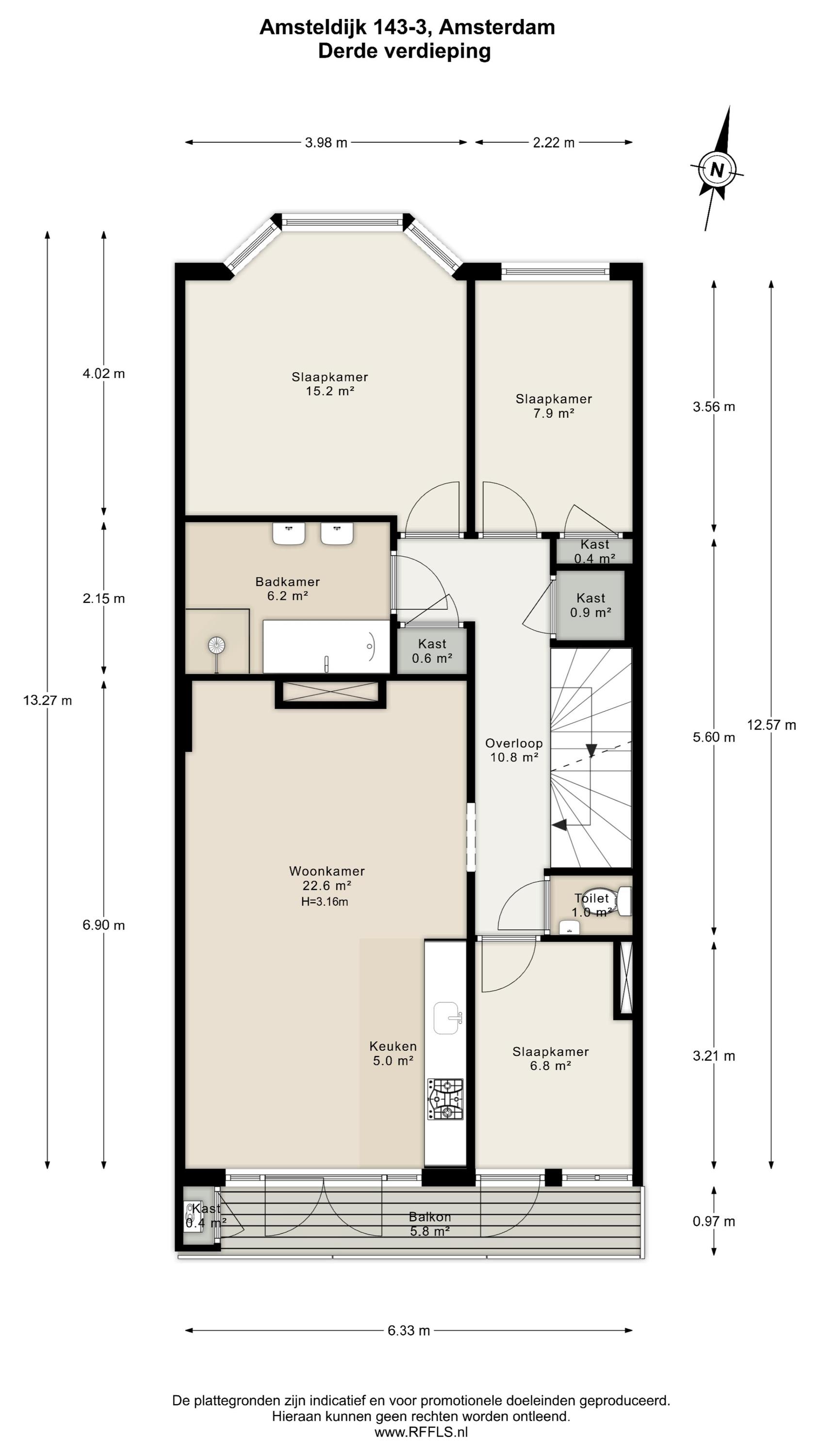
Fully renovated, high-end apartment of approximately 82 m², featuring high ceilings (3.16 m), three bedrooms, a luxurious bathroom, a sunny balcony, and a well-proportioned rooftop terrace (approx. 33 m²) complete with an outdoor kitchen and outdoor bath. The apartment is situated in a well-maintained building, which was redivided in 2023, in one of the most desirable locations along the Amstel.
Location & Accessibility
The Amsteldijk is a spacious avenue along the Amstel, characterized by stately architecture and abundant greenery. This location offers a pleasant, central yet tranquil setting on the sunny side of the river. In the immediate vicinity, you will find various options for daily shopping, including Albert Heijn, Etos, and the lively Albert Cuyp Market. Additionally, the area boasts a wide selection of charming restaurants and neighbourhood cafés. Crossing the Nieuwe Amstel Bridge by bike brings you directly into the vibrant De Pijp district, known for its trendy boutiques, inviting terraces, and popular dining spots. For relaxation, both Oosterpark and Sarphatipark are within a 10-minute cycling distance, while the Amstel itself offers the perfect setting to enjoy a sunny day right at your doorstep.

The property is conveniently located with easy access to major roads (A10 and A2) and public transport. Nearby stations include Amstel metro station, Station RAI, and Station Zuid, all offering frequent connections by train, metro, tram, and bus in various directions.

Layout
Entrance to the apartment is via the landing, which provides access to two storage cupboards and a separate toilet fitted with a wall-mounted WC and washbasin. The landing connects to all rooms. At the rear, you will find the spacious and bright living room, featuring a gas fireplace and a luxurious open-plan kitchen equipped with various built-in Siemens appliances. French doors open onto the charming balcony. The bedroom at the rear also provides access to the balcony. At the front of the apartment is the master bedroom with a bay window, as well as the third bedroom. Both rooms enjoy lovely views over the Amstel. The centrally located, high-end bathroom is fitted with a bathtub, walk-in shower, and a double vanity unit. An internal staircase leads to the elegant rooftop terrace, fully equipped with LED lighting, a sunshade, greenery, a complete outdoor kitchen, and an outdoor bath. From here, you can enjoy sunshine throughout the day and unobstructed views over the Amstel.

No expense has been spared during the renovation, with high-quality materials used throughout the luxurious finishes. The entire apartment features an oak herringbone floor with underfloor heating and elegant high skirting boards. All rooms are fitted with recessed spotlights, wall lighting, and decorative mouldings.

Key Features
- Apartment right of 81.6 m² (measured in accordance with the NEN2580 measurement standard);
- Generous rooftop terrace of 33 m² (measured in accordance with the NEN2580 measurement standard);
- Rooftop terrace equipped with an outdoor kitchen and outdoor bath;
- Luxuriously renovated;
- Three bedrooms;
- Fully fitted with underfloor heating;
- High ceilings (over 3 metres);
- Unobstructed views over the Amstel;
- Luxury gas fireplace;
- Ground lease: AB2000, current period runs until 31 May 2049 (prepaid);
- Homeowners’ association (VvE), service charges: €120 per month;
- Transfer in consultation, available at short notice.
This information has been compiled with due care. However, we accept no liability for any inaccuracies, omissions, or otherwise, nor for the consequences thereof. All stated measurements and surface areas are indicative. The buyer has a duty to conduct their own investigation into all matters of importance to them. With regard to this property, the real estate agent represents the seller. We advise you to engage a qualified (NVM) real estate agent to assist you during the purchasing process. Should you have specific requirements regarding the property, we recommend that you communicate these in a timely manner to your purchasing agent and conduct (or have conducted) your own independent investigation. If you choose not to engage a professional representative, you are deemed by law to be sufficiently knowledgeable to assess all matters of importance yourself. The NVM terms and conditions apply.

Features

Transfer of ownership
Asking Price
€ 850.000
Status
onder bod
Acceptance
in overleg
Construction
Kind of house
Bovenwoning
Building type
appartement
Construction period
1925
Energy rating
A
Roof type
plat dak
Bedrooms
3
Bathrooms
1
Surface Areas And Volume
Living Area
82 m2
Other indoor space
0 m2
Exterior space attached to the buildinge
39 m2
Volume in cubic meters
306 m3
Plot Size
134 m2
Facilities
Mechanische ventilatie
Tv kabel
Buitenzonwering
Aan water
Vrij uitzicht
Aan vaarwater
Baerz & Co Property Brochure

Brochure

Videos

Floor Plans

J.J. Van Oosten Makelaardij BV

Straatweg 225
3054 AG Rotterdam

info@vanoostenmakelaardij.nl
+31 10 422 11 00

www.vanoostenmakelaardij.nl

Information / Viewing request

Joris van Oosten profile image
Joris van Oosten
Real Estate Agent

Buying a Luxury Property in Amsterdam

Amsterdam offers a cosmopolitan lifestyle defined by heritage, connectivity, and discreet luxury. Residents benefit from a robust international community, curated services, and vibrant culture. The city’s enduring appeal lies in its blend of history, sophistication, and progressive spirit.