Ons kantoor is lid van Baerz & Co Luxury Homes; een internationaal platform dat exclusieve woningmakelaars met elkaar verbindt. Neem contact op met ons secretariaat voor meer informatie over het landelijke aanbod, waarvan u hieronder een selectie kunt bekijken.

VENLO
Monseigneur Boermansstraat 11 - 5911 BA
هولندا

Don Willems profile image
Don Willems
Makelaar
€898,750 k.k.
مساحة المعيشة
225m2
حجم الأرض
240m2
غرف نوم
5

الوصف

تاون هاوس فينلو هو مثال بارز على عمارة العشرينيات ويقع في قلب المدينة؛ يجمع بين الطابع التاريخي وراحة المعيشة العصرية، ويطل بإطلالة مميزة على حديقة الروزاريوم. تمتد هذه الإقامة على مساحة 225 م² موزعة على ثلاثة طوابق، وتضم خمس غرف نوم وحمامين وتستفيد من ضوء طبيعي وافر في جميع أنحاء المكان. من المدخل الواسع الذي يتميز بأرضية مكسوة ببلاط بيانو كارارا الرخامي حتى غرفة المعيشة الرحبة المكسوة بباركيه فرنسي من خشب البلوط بتنفيذ متقن، ينبعث من كل مساحة لمسة رقي وصدق تاريخي.

تتميز الطبقة الرئيسية بإطلالات مفتوحة على الروزاريوم، مع سقوف عالية مزينة بزخارف أصلية ومدفأة تعمل بالغاز وتقنيات متطورة مدمجة بسلاسة مثل التكييف وإنارة قابلة للتعتيم. أما الأبواب الفرنسية الخلفية فتنفتح على حديقة مصممة من قبل مهندس معماري، لتوفر ملاذًا خاصًا يضم أكثر من تراس، وأسطح من خشب بادوك، وساحة مرصوفة، ومسبح مدفأ، تحيط بها الجدران لضمان الخصوصية التامة على بُعد دقائق فقط من مركز فينلو.

في الأعلى، يفتح جناح رئيسي واسع على شرفة تطل على حدائق المدينة، بينما توفر الفراغات المرنة خيارات لمساحات إضافية للنوم أو للعمل والدراسة. تم تجديد الحمامات باستخدام أرضيات مدفأة وتجهيزات فاخرة ليتجلى فيها أجواء الفخامة الهادئة. كما توفر الكفاءة الطاقية الفائقة، بفضل علامة A++، وخمسة عشر لوح طاقة شمسية تولد 6,000 كيلوواط/ساعة، ومضخة حرارية وزجاج ثلاثي الطبقات—وهي مميزات نادرة في عقار بهذا العراقة.

وبين العملية والأجواء الراقية—قبو مخصص للتخزين، تدفئة تحت الأرض للحمامات، تكييف هواء، وخيار استئجار مرآب—يوفر هذا المنزل الرفيع في فينلو حياة هادئة تمنح التصميم والخصوصية والراحة الحضرية التامة.

استكشف Venlo مع Baerz، مستشارك الشخصي الموثوق للعقارات

تتطلب صفقات العقارات الفاخرة فهمًا دقيقًا للمخزون المحلي وأنظمة البناء والمشاريع المستقبلية. يمنحك المستشارون الخبراء وصولاً حصريًا إلى عروض خارج السوق ويفضلون التفاوض بسرية لمواكبة التطورات. التوجيه ضروري للحصول على أفضل العقارات أو شروط استثمار مميزة.

تجنب الأخطاء الشائعة

غالبًا ما يضيع المشترون الدوليون وقتًا ثمينًا على قوائم مكررة أو قديمة أو مضللة عبر الإنترنت، خاصة وأن ما يقرب من 30% من المنازل الفاخرة لا تظهر أبدًا في السوق العام. يمثل وكلاء البائعين مصالح البائع، وليس المشتري. حتى طلب معلومات عن عقار يمكن أن يؤدي إلى تسجيل وكيل البائع لك كـ "عميل" دون موافقتك.
مع بايرز فايندرز ومستشارو العقارات، تتجنب كل هذه الأخطاء تمامًا. نحن نعمل فقط نيابة عنك، ونقدم تمثيلًا مستقلًا، وإرشادات واضحة والوصول إلى جميع العقارات المتاحة، بما في ذلك الفرص خارج السوق التي لا يراها الآخرون أبدًا.

مهتم بمستشار عقارات شخصي؟

نحن نعرض لك جميع المنازل المتاحة في مكان واحد. لا تتردد في الاتصال بنا لمعرفة كيف يمكننا تلبية احتياجاتك وحماية مصالحك بشكل حصري.

الميزات

حمام سباحة
ألواح شمسية
تكييف هواء
نقل الملكية
السعر المطلوب
€ 898.750 k.k.
الحالة
beschikbaar
القبول
in overleg
البناء
نوع المنزل
Herenhuis
نوع المبنى
tussenwoning
فترة البناء
1926
تصنيف الطاقة
A++
نوع السقف
samengesteld dak
غرف نوم
5
حمامات
2
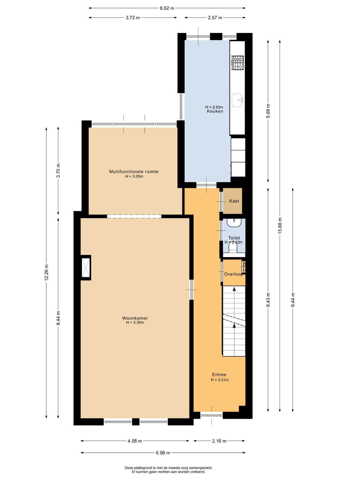
المساحات السطحية والحجم
مساحة المعيشة
225 m2
مساحة داخلية أخرى
36 m2
المساحة الخارجية الملحقة بالمبنى
2 m2
الحجم بالمتر المكعب
807 m3
حجم الأرض
240 m2
المرافق
Mechanische ventilatie
Zwembad
Airconditioning
Dakraam
Zonnepanelen
Aan rustige weg
In centrum
Baerz & Co Property Brochure

كتيب

فيديوهات

مخططات الطوابق

VeTeBe

Grotestraat 84a
5931 CX Tegelen

info@vetebe.nl
+31 77 3262600

www.vetebe.nl

طلب معلومات / مشاهدة

Don Willems profile image
Don Willems
Makelaar