Ons kantoor is lid van Baerz & Co Luxury Homes; een internationaal platform dat exclusieve woningmakelaars met elkaar verbindt. Neem contact op met ons secretariaat voor meer informatie over het landelijke aanbod, waarvan u hieronder een selectie kunt bekijken.

OEGSTGEEST
Zandbergenstraat 14 - 2341 GW
هولندا

Michiel de Jong RM profile image
Michiel de Jong RM
NVM Register Makelaar - Partner
€1,585,000 k.k.
مساحة المعيشة
210m2
حجم الأرض
279m2
غرف نوم
5

الوصف

تقع هذه الفيلا المتلاصقة في أويجستجيست داخل حي بارك دايفنفوردي الأخضر الوارف، حيث يلتقي إرث العمارة الكلاسيكية من ثلاثينيات القرن العشرين بالتصميم العصري. توفر مساحة معيشة سخية تبلغ نحو 210 م² على قطعة أرض مساحتها 279 م²، وتضم خمسة غرف نوم وحمامين أنيقين، مع إيقاع هادئ ينعكس في الديكورات الداخلية الواسعة.

أُنجز بناء الفيلا في عام 2021، ولا تزال بحالة شبه جديدة، ويطغى عليها تشطيبات عالية الجودة وعناية دقيقة بالتفاصيل. تتوزع الطابق الأرضي غرفة معيشة على شكل حرف «L» تغمرها أشعة الشمس وتطل على مطبخ مع منطقة طعام مجهز بفرنين وثلاجة نبيذ وشفاط حديث و بابين فرنسيين يؤديان إلى حديقة مواجهة للغرب. في الأعلى، يوفر جناح النوم الرئيسي خزانة ملابس منفصلة وحمام فاخر بحوض استحمام ووحدتي غسيل. ثلاث غرف نوم أخرى وحمام ثانٍ يضيفون الخصوصية والمرونة للعائلة أو الضيوف.

صُممت الفيلا لتوفر الراحة والاستدامة معًا، حيث تحمل التصنيف الطاقي A، وبها عزل كامل و16 لوحة شمسية ونظام تدفئة تحت الأرضية بالكامل. كما تشمل المنزل مدخلاً خاصًا للسيارات ومرآبًا واتصالاً بالألياف البصرية ونظام أمني متكامل لتعزيز سهولة الحياة اليومية. من هذا العنوان المركزي الهادئ، يمكن الوصول سيرًا أو بالدراجة إلى المحلات التجارية والمدارس والمتنزهات والمقاهي الشهيرة، كما أن الشواطئ والطرق الرئيسية قريبة للغاية.

للباحثين عن مزيج مثالي بين السكن الموفر للطاقة والطابع المحلي الأصيل، تُعد هذه الفيلا المتلاصقة المعروضة للبيع في أويجستجيست فرصة مدروسة وبعيدة المدى.

استكشف Oegstgeest مع Baerz، مستشارك الشخصي الموثوق للعقارات



تجنب الأخطاء الشائعة

غالبًا ما يضيع المشترون الدوليون وقتًا ثمينًا على قوائم مكررة أو قديمة أو مضللة عبر الإنترنت، خاصة وأن ما يقرب من 30% من المنازل الفاخرة لا تظهر أبدًا في السوق العام. يمثل وكلاء البائعين مصالح البائع، وليس المشتري. حتى طلب معلومات عن عقار يمكن أن يؤدي إلى تسجيل وكيل البائع لك كـ "عميل" دون موافقتك.
مع بايرز فايندرز ومستشارو العقارات، تتجنب كل هذه الأخطاء تمامًا. نحن نعمل فقط نيابة عنك، ونقدم تمثيلًا مستقلًا، وإرشادات واضحة والوصول إلى جميع العقارات المتاحة، بما في ذلك الفرص خارج السوق التي لا يراها الآخرون أبدًا.

مهتم بمستشار عقارات شخصي؟

نحن نعرض لك جميع المنازل المتاحة في مكان واحد. لا تتردد في الاتصال بنا لمعرفة كيف يمكننا تلبية احتياجاتك وحماية مصالحك بشكل حصري.

الميزات

ألواح شمسية
نظام إنذار
نقل الملكية
السعر المطلوب
€ 1.585.000 k.k.
الحالة
beschikbaar
القبول
in overleg
البناء
نوع المنزل
Eengezinswoning
نوع المبنى
twee onder een kapwoning
فترة البناء
2020
تصنيف الطاقة
A
نوع السقف
samengesteld dak
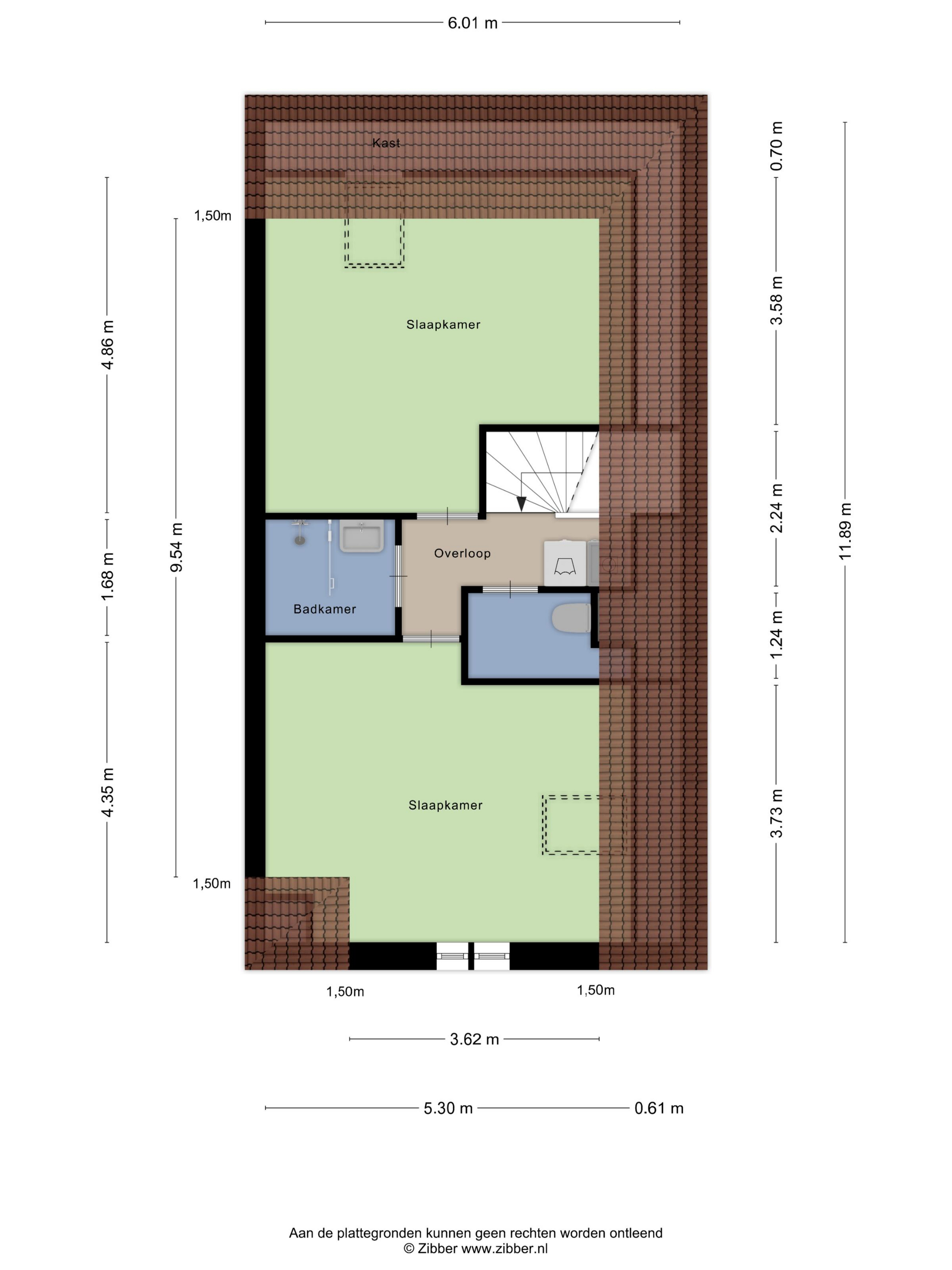
غرف نوم
5
حمامات
2
المساحات السطحية والحجم
مساحة المعيشة
210 m2
مساحة داخلية أخرى
23 m2
الحجم بالمتر المكعب
825 m3
حجم الأرض
279 m2
المرافق
Mechanische ventilatie
Alarminstallatie
Dakraam
Glasvezel kabel
Zonnepanelen
Aan rustige weg
In woonwijk
Baerz & Co Property Brochure

كتيب

فيديوهات

مخططات الطوابق

Graal Makelaardij

Rapenburg 4
2311 EV Leiden

info@graalmakelaardij.nl
+31 (0)71 51 61 000

www.graalmakelaardij.nl

طلب معلومات / مشاهدة

Michiel de Jong RM profile image
Michiel de Jong RM
NVM Register Makelaar - Partner